- Tylko online
Masz pytania? Chciałbyś negocjować cenę
Zadzwoń! 577 575 011
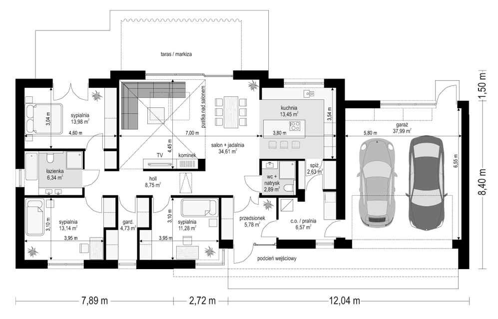
Projekt domu Dom na Szerokiej jest to projektu domu jednorodzinnego z serii „Dom na Szerokiej”. Jest to projekt parterowego budynku, zbudowanego na planie prostokąta, przykrytego dwuspadowym symetrycznym dachem, o szerokiej – zgodnie z nazwą – elewacji frontowej. Dom przeznaczony jest na działki płytkie, z małą głębokością między drogą a tyłem parceli, lub na działki z ogrodem z boku domu (wówczas budynek sytuowany jest bokiem do drogi dojazdowej). Dom zaprojektowano dla Inwestorów marzących o parterowym budynku, o maksymalnie szerokim otwarciu części dziennej na taras i otaczający go trawnik. Jednocześnie chcących budować dom o prostej bryle, bez przesadnych udziwnień. To typowy parterowy dom w stylu bungalow. Architektura budynku bardzo przyciąga uwagę. Szerokie reprezentacyjne wejście do domu z przeszkleniami do ziemi, pięknymi drzwiami wejściowymi z naświetlem, oraz długim daszkiem nad podestem wejściowym i podjazdem do garażu dodają domowi prestiżu i nowoczesnego sznytu. Od strony ogrodu mamy piękne przesuwne drzwi z salonu na taras – ogromne przeszklenie powiększające pokój dzienny o ogród. Architektura dom u jest nowoczesna, ale też powściągliwa. Detale wykończeniowe, materiały i kolory dobrano tak, aby stanowiły harmonijną całość. Wnętrze domu zaprojektowano dzieląc je na trzy części: środkową dzienną – z salonem, nocną z sypialniami i gospodarczą – z garażem i kotłownią. Z garażu przechodzimy z zakupami wygodnym przejściem przez kotłownię, albo pod zadaszeniem podcienia wejściowego, lub przez spiżarnię – wprost do kuchni. Zarówno wnętrze dzienne, jak i pokoje sypialne to duże kształtne powierzchnie – bez kompromisów. Do pokoju dziennego przechodzimy z obszernego przedsionka z szafami, przez hol i korytarz. Otwiera się przed nami świetne jasne komfortowe wnętrze - doskonale doświetlone dużymi przesuwnymi drzwiami balkonowymi, oraz oknami połaciowymi w dachu.Nad częścią salonu mamy otwarcie przestrzenne aż do linii dachu - zwiększające kubaturę pomieszczenia. Kuchnia z wyspą, jadalnia i salon zorganizowane są wokół centralnej ściany kominkowo – telewizyjnej oddzielającej salon od korytarza prowadzącego do sypialni. W części nocnej mamy trzy wygodne sypialnie z szafami wbudowanymi, garderobą domową i łazienką. Z sypialni rodziców zaprojektowano urokliwe wyjście na taras. Całość domu zamykają bardzo wygodny dwustanowiskowy garaż, oraz strych nad parterem, który można wykorzystać na domowy magazyn - graciarnię, dostępny z parteru za pomocą schodków drabinkowych. Konstrukcja domu jest bardzo prosta: ściany parteru do wysokości wieńca + konstrukcja stropu nad parterem i więźby dachowej w postaci układu prefabrykowanych wiązarów drewnianych. Takie rozwiązanie znacznie przyspiesza budową, upraszcza ją i – co najważniejsze – jest tańsze. W projekcie zastosowano bardzo dobre izolacje, nowoczesne materiały i instalacje, dzięki czemu budynek będzie tani w późniejszej eksploatacji. Dom na Szerokiej to doskonała propozycja dla Inwestorów chcących budować parterówkę, ale pragnących aby ich dom wyróżniał się na tle innych zwykłych domków. Zapraszamy !
