- Tylko online
Masz pytania? Chciałbyś negocjować cenę
Zadzwoń! 577 575 011
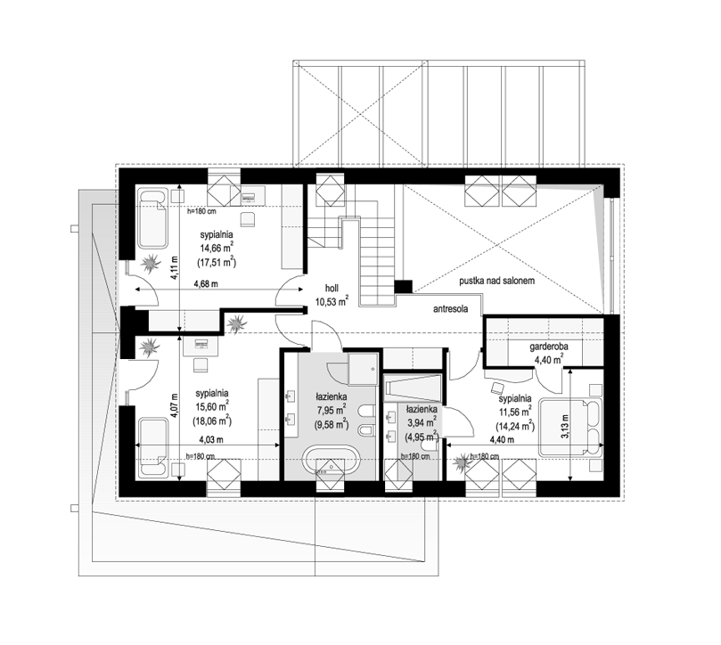
Projekt domu Lambada to projekt z naszej serii taneczno-imprezowych domów (Mambo, Bolero, Makarena, Party, Biba, Tango, Salsa, Fokstrot, Samba, Rumba). Lambada to propozycja parterowego domu jednorodzinnego z poddaszem użytkowym, o nowoczesnej architekturze w stylistyce domu-stodoły. Budynek wyróżnia zwarta bryła, nowoczesna czysta architektura pozbawiona zbędnych elementów, oraz funkcjonalne wnętrze. Prostokątny rzut domu, z wbudowanym parterowym garażem, wieńczy dwuspadowy symetryczny dach z wysoką ścianą kolankową poddasza. Elewacje domu zdominowane są przez jasne tynkowane ściany i duże przeszklenia okienne. Kontrastujące zestawienie kolorystyczne bieli z czarnymi i szarymi elementami obróbek blacharskich, dachu, ram okiennych i fragmentów ścian, dają czystą i wyrazistą sylwetkę domu, pełną świeżości i przywołującą wrażenie solidności porządku. Elewację frontową podkreślają reprezentacyjne drzwi wejściowe z naświetlami bocznymi schowane w podcieniu, narożne okno kuchenne, oraz okna połaciowe z oknami kolankowymi. Od strony ogrodowej atrakcyjności elewacji dodają duże przeszklenia salonu wraz z wysokim oknem antresoli w szczycie domu, oraz pergola stanowiąca częściowe zadaszenie tarasów. Wnętrze domu zaskakuje poczuciem przestrzeni - trudnym do uzyskania w 150-metrowym domu. Poczucie przestronności części dziennej potęgują duże przeszklenia, oraz pustka nad salonem i schodami, łącząca pokój dzienny z antresolą na poddaszu. Wnętrze jest bardzo nowoczesne. Salon, dzięki dużym przeszkleniom, otwiera wnętrze na otaczający ogród i skąpany jest w świetle słonecznym. Na parterze prócz części dziennej znajdziemy dodatkowy pokój z łazienką, oraz garaż z pomieszczeniem kotłowni. Na poddaszu przewidziano trzy pokoje sypialne z dwiema łazienkami, w tym apartament master z własną łazienką i garderobą. Wnętrze można dowolnie kształtować, ale bez problemu zmieści się tutaj 4- 6-osobowa rodzina. Budynek zaprojektowano jako energooszczędny, z dobrymi izolacjami i nowoczesnymi instalacjami. Dom ma prostą konstrukcję i zwartą bryłę, dzięki czemu będzie łatwy w budowie i niedrogi w późniejszej eksploatacji. Lambada to propozycja dla Inwestorów pragnących zbudować nowoczesny, czysty w formie, ciekawy architektonicznie dom o nieprzesadzonej skali. Dom dla Inwestorów chcących połączyć tradycyjną funkcjonalność z ciekawą formą architektoniczną. Zapraszamy do zapoznania się z całą serią "roztańczonych domów": projekt domu Makarena, projekt domu Bolero, projekt domu Party, projekt domu Party 2, projekt domu Biba, projekt domu Tango, projekt domu Salsa, projekt domu Rumba, projekt domu Mambo, projekt domu Fokstrot, projekt domu Samba.
