Informujemy, iż nasz sklep internetowy wykorzystuje technologię plików cookies a jednocześnie nie zbiera w sposób automatyczny żadnych informacji, z wyjątkiem informacji zawartych w tych plikach (tzw. „ciasteczkach”).

D304 - WT2021

  • Tylko online

Dane techniczne

powierzchnia
77.61 m²
wysokość
7.58 m
kąt dachu
40 °
szerokość działki
20.08 m
Liczba pokoi
4
Powierzchnia zabudowy
88.29
kondygnacje
z poddaszem użytkowym
garaż
z garażem 1 st.
dach
dach dwuspadowy
konstrukcja
murowane
zabudowa
domy wolnostojące
piwnica
bez piwnicy
kubatura
423.23 m³
dostępne odbicie lustrzane
Nie
Pow. użytkowa
77.61 m²
długość działki
15.92 m
Liczba łazienek
2

Opis projektu

Rzuty

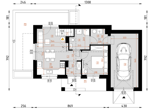
Parter
1 wiatrołap
2.72
2 hol
1.86
3 pokój 1
10.31
4 łazienka
4.57
5 kuchnia
5.42
6 salon + jadalnia
13.05
7 schody
1.77
8 pomieszczenie techniczne
3.74
9 garaż
21.52
10 taras 1
7.89
11 taras 2
30.21
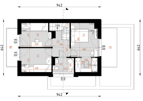
Poddasze
1 korytarz
4.43
2 pokój 2
9.9
3 garderoba
2.9
4 łazienka
3.63
5 pokój 3
7.68
6 pokój 4
7.37
7 schody
2
8 balkon 1
5.01
9 taras 3
7.67

Elewacje

Sytuacja

O autorze projektu D304 - WT2021

3 999 zł

Tylko u nas możesz negocjować cenę!
Skorzystaj z tej możliwości.

Lustrzane odbicie: niedostępne.

Masz dodatkowe pytania?
Zadzwoń lub zamów rozmowę.

Zamów rozmowę

Pomożemy Ci dopasować do twoich potrzeb mymarzony projekt, wpisz swój numer telefonu nasz konsultant oddzwoni.

Negocjuj cenę projektu D304 - WT2021

Zapytaj pytanie o projekt D304 - WT2021

Oceny i komentarze

Napisz swoją opinię