Dane techniczne
- powierzchnia
- 466 m²
- wysokość
- 10.67 m
- kąt dachu
- 40 °
- szerokość działki
- 20.2 m
- Powierzchnia zabudowy
- 331.94
- kondygnacje
- z poddaszem użytkowym
- garaż
- z garażem 1 st.
- dach
- dach dwuspadowy
- konstrukcja
- murowane
- zabudowa
- domy bliźniacze
- piwnica
- bez piwnicy
- kubatura
- 2661.9 m³
- dostępne odbicie lustrzane
- Nie
- Pow. użytkowa
- 466 m²
- długość działki
- 19.46 m
Opis projektu
Projekt budynku jednorodzinnego dwulokalowego
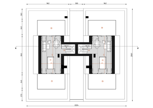
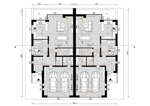
Rzuty
Parter
2
gabinet/dodatkowy pokój
11.91
14
gabinet/dodatkowy pokój
11.91
16
salon z jadalnią
33.29
Piętro
1
garderoba/siłownia
11.97
1
garderoba/siłownia
11.97
Poddasze
2
pokój rekreacyjny
26.23
2
pokój rekreacyjny
26.23
O autorze projektu D341 - WT2021

Zobacz inne, podobne projekty