- Tylko online
Masz pytania? Chciałbyś negocjować cenę
Zadzwoń! 577 575 011
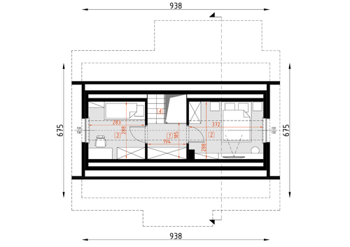
Dom mieszkalny jednorodzinny. Na parterze znajdują się jedna sypialnia, pokój dzienny z aneksem kuchennym, łazienka i przedsionek, na poddaszu znajdują się dwa pokoje.
