Informujemy, iż nasz sklep internetowy wykorzystuje technologię plików cookies a jednocześnie nie zbiera w sposób automatyczny żadnych informacji, z wyjątkiem informacji zawartych w tych plikach (tzw. „ciasteczkach”).

HOMEKONCEPT 66

Lustrzane odbicie
  • Tylko online

Dane techniczne

powierzchnia
121.35 m²
wysokość
7.11 m
kąt dachu
35 °
szerokość działki
18.16 m
Liczba pokoi
5
Powierzchnia zabudowy
93.17
kondygnacje
parterowe
garaż
bez garażu
dach
dach dwuspadowy
kubatura
543 m³
dostępne odbicie lustrzane
Tak
Pow. użytkowa
121.35 m²
długość działki
21 m
Liczba łazienek
2
Powierzchnia dachu
143 m²
Euco+w
32.13 kWh/m2 rok
Ep
68.97 kWh/m2 rok

Opis projektu

Rzuty

Rzut parteru
1 komunikacja
8.45
2 sypialnia
11.46
3 salon/jadalnia/kuchnia
28.2
4 łazienka
5.2
5 pom. gospodarcze/pralnia
6.18
6 taras
9.25
7 taras
118.95
8 sauna
2.3
9 toaleta
1.36
10 wiatrołap
4.87
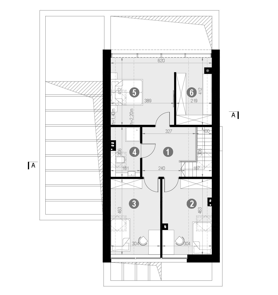
Rzut poddasza
1 garderoba
5.46
2 sypialnia
12.5
3 komunikacja
12.37
4 sypialnia
9.98
5 sypialnia
10.11
6 łazienka
2.91
przekrój
1 wysokość budynku
7.11
2 wysokość do okapu dachu
3.67

O autorze projektu HOMEKONCEPT 66

5 690 zł

Tylko u nas możesz negocjować cenę!
Skorzystaj z tej możliwości.

Lustrzane odbicie: dostępne.

Masz dodatkowe pytania?
Zadzwoń lub zamów rozmowę.

Zamów rozmowę

Pomożemy Ci dopasować do twoich potrzeb mymarzony projekt, wpisz swój numer telefonu nasz konsultant oddzwoni.

Negocjuj cenę projektu HOMEKONCEPT 66

Wersja projektu:

Zapytaj pytanie o projekt HOMEKONCEPT 66

Wersja projektu:

Oceny i komentarze

Napisz swoją opinię