Informujemy, iż nasz sklep internetowy wykorzystuje technologię plików cookies a jednocześnie nie zbiera w sposób automatyczny żadnych informacji, z wyjątkiem informacji zawartych w tych plikach (tzw. „ciasteczkach”).

HOMEKONCEPT 67

Lustrzane odbicie
  • Tylko online

Dane techniczne

powierzchnia
144.46 m²
wysokość
6.77 m
kąt dachu
35 °
szerokość działki
21.39 m
Liczba pokoi
4
Powierzchnia zabudowy
136.26
kondygnacje
parterowe
garaż
bez garażu
dach
dach wielospadowy
kubatura
747 m³
dostępne odbicie lustrzane
Tak
Pow. użytkowa
144.46 m²
długość działki
25.34 m
Liczba łazienek
2
Powierzchnia dachu
185 m²
Euco+w
32.34 kWh/m2 rok
Ep
66.46 kWh/m2 rok

Opis projektu

Rzuty

Rzut parteru
1 sypialnia
13.33
2 wiatrołap
5.42
3 sypialnia
12.97
4 komunikacja
11.32
5 łazienka/sauna
14.35
6 kotłownia/pom.gosp.
3.98
7 toaleta
1.55
8 salon/jadalnia/ kuchnia
43.12
9 taras
127.05
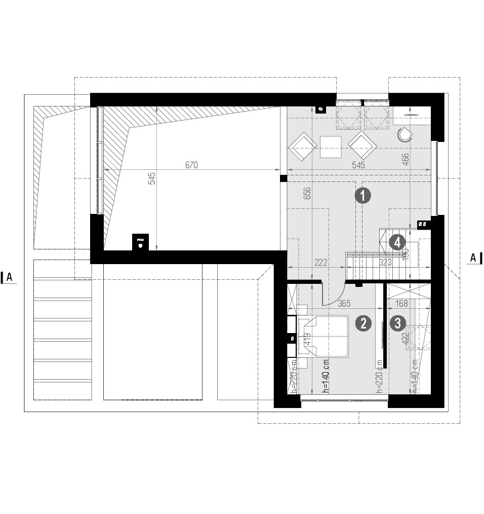
Rzut poddasza
1 garderoba
2.81
2 komunikacja
2.42
3 antresola
22.15
4 sypialnia
11.04
przekrój
1 wysokość budynku
6.77
2 wysokość do okapu dachu
3.61

O autorze projektu HOMEKONCEPT 67

6 590 zł

Tylko u nas możesz negocjować cenę!
Skorzystaj z tej możliwości.

Lustrzane odbicie: dostępne.

Masz dodatkowe pytania?
Zadzwoń lub zamów rozmowę.

Zamów rozmowę

Pomożemy Ci dopasować do twoich potrzeb mymarzony projekt, wpisz swój numer telefonu nasz konsultant oddzwoni.

Negocjuj cenę projektu HOMEKONCEPT 67

Wersja projektu:

Zapytaj pytanie o projekt HOMEKONCEPT 67

Wersja projektu:

Oceny i komentarze

Napisz swoją opinię