- Tylko online
Masz pytania? Chciałbyś negocjować cenę
Zadzwoń! 577 575 011
Projekt domu Jaś A to prawdziwa oaza komfortu i funkcjonalności, stworzona z myślą o współczesnych potrzebach rodzinnych. Z wykuszem w jadalni oraz balkonem na poddaszu, ten dom wyróżnia się nie tylko estetyką, ale także inteligentnym wykorzystaniem przestrzeni.
Garaż wysunięty od frontu zapewnia wygodę wejścia bezpośrednio z wiatrołapu, co ułatwia codzienne funkcjonowanie. Kotłownia, umieszczona obok niewielkiej łazienki, została oddzielona drzwiami przesuwnymi, co zapewnia nie tylko funkcjonalność, ale również estetyczne rozwiązanie przestrzenne.
Otwarta na salon kuchnia z praktyczną, przechodnią spiżarką staje się sercem domu, gdzie aromaty potraw łączą się z rozmowami i uśmiechami. Centralnie usytuowany kominek dodaje uroku i zapewnia przytulną atmosferę w całym domu, umilając czas spędzany wspólnie.
Pokój dzienny harmonijnie łączy się z ogrodem poprzez duże przeszklenia na obydwu narożnych ścianach, co pozwala na swobodny przepływ między wnętrzem a otoczeniem. Przylegający do niego taras staje się idealnym miejscem do spotkań i rodzinnych posiłków na świeżym powietrzu, oferując ciepłe, nasłonecznione miejsce.
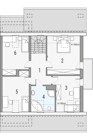
Wysunięty w stronę ogrodu pokój gabinetowy posiada odrębne wyjście od strony tarasu oraz okno z widokiem na zieleń, zapewniając spokój i prywatność podczas pracy lub relaksu. Na poddaszu znajdują się cztery komfortowe sypialnie oraz duża łazienka, tworząc strefę prywatności dla domowników.
Projekt Jaś A to harmonijne połączenie funkcjonalności, wygody i estetyki, które sprawiają, że życie w tym domu staje się prawdziwą przyjemnością. To miejsce, gdzie marzenia o komfortowym i pięknym domu stają się rzeczywistością, tworząc idealną przestrzeń do życia i relaksu dla całej rodziny.
