- Tylko online
Masz pytania? Chciałbyś negocjować cenę
Zadzwoń! 577 575 011
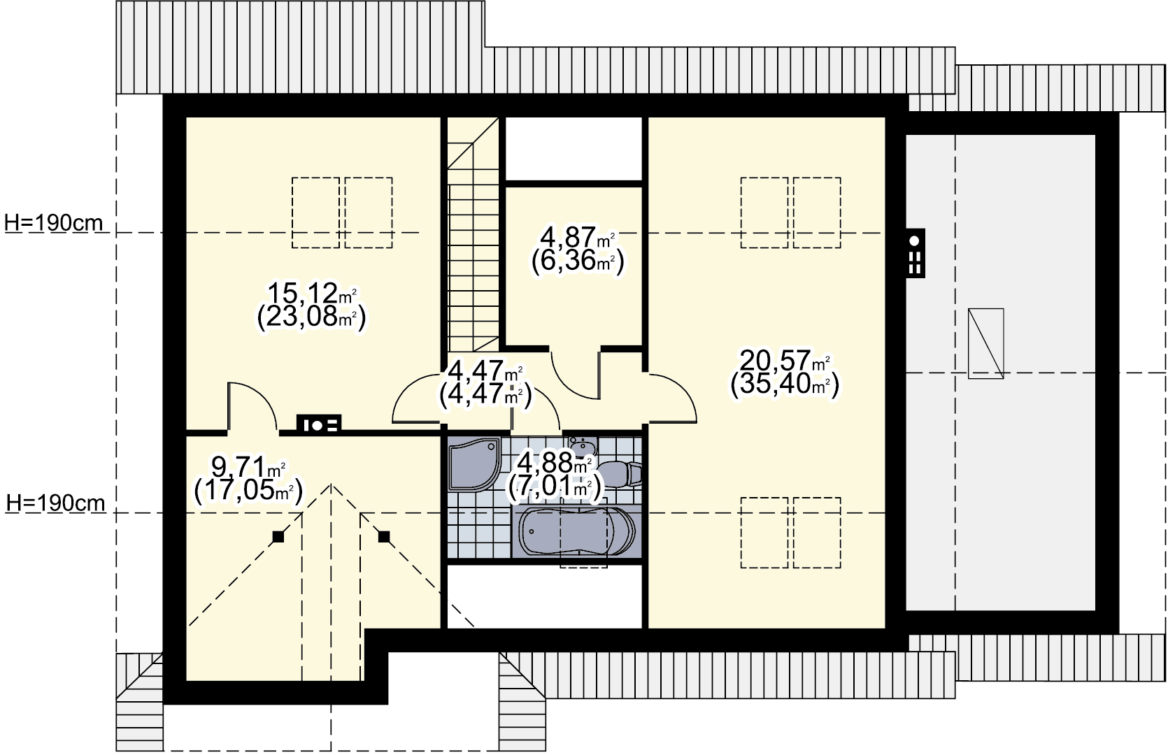
Projekt klasycznego domu parterowego z możliwością adaptacji poddasza. Parter budynku został podzielony na 3 strefy. Strefa dzienna to duża, jasna kuchnia oraz przestronny salon z centralnie umieszczonym kominkiem. Przewidziano w nim miejsce na schody, prowadzące na ewentualne poddasze. Strefa nocna to 3 ustawne pokoje oraz jasna łazienka, w której zmieści się wanna i prysznic. Do strefy gospodarczej należą: praktyczna pralnia, łącząca dom z garażem oraz duża kotłownia, w której zaprojektowano piec na paliwo stałe. Dzięki zastosowaniu stropu Teriva, przestrzeń na poddaszu można organizować w dowolny sposób. Nasza propozycja to 2 dodatkowe pokoje, 2 garderoby i wygodna łazienka, co daje dodatkowe 55 m² powierzchni użytkowej domu (liczone na 190 cm) . Dom można budować etapami, adaptacja poddasza może być przeprowadzona później. Dzięki zastosowaniu prostych rozwiązań dom jest tani w budowie i późniejszej eksploatacji.
Uwaga! Dokumentacja Projektowa nie zawiera elementów małej architektury takich jak: donice, podesty, altany, grille ogrodowe, murki, pergole, a także innych elementów wizualizacji, takich jak: garaże i wiaty wolnostojące, drogi, podjazdy, ogrodzenia, baseny itp.
