- Tylko online
Masz pytania? Chciałbyś negocjować cenę
Zadzwoń! 577 575 011
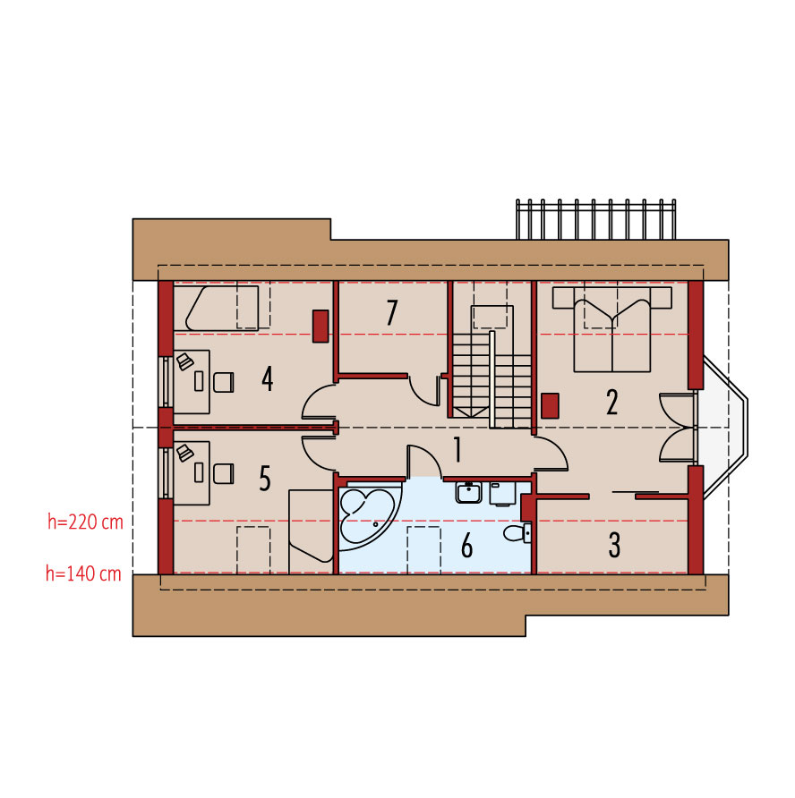
Charakterystyka: Dom parterowy z poddaszem użytkowym, podpiwniczony, z garażem jednostanowiskowym Przeznaczenie: Dom dla 3-4 osobowej rodzinyTechnologia i konstrukcja: Ściany zewnętrzne: murowane, Strop: gęstożebrowy Dach: konstrukcja drewniana, dachówka płaska lub inna o podobnych parametrach Inne: schody wewnętrzne: do podpiwniczenia – żelbetowe, na poddasze – drewniane. Rozwiązania instalacyjne: Ogrzewanie: kocioł gazowy, rozprowadzenie ciepła: grzejniki Wentylacja: grawitacyjna Wykończenie: Elewacje: tynk mineralny i cegła klinkierowa Stolarka: drewniana lub PCV. Rolety zewnętrzne w systemie CleverBox firmy BeClever.Wersje - zapytaj o dostępność: - Ben G1 – wersja projektu bez piwnicy - Ben II G1 – wersja większa projektu - Ben II G1 (z piwnicą) – większa wersja projektu z piwnicą
