- Tylko online
Masz pytania? Chciałbyś negocjować cenę
Zadzwoń! 577 575 011
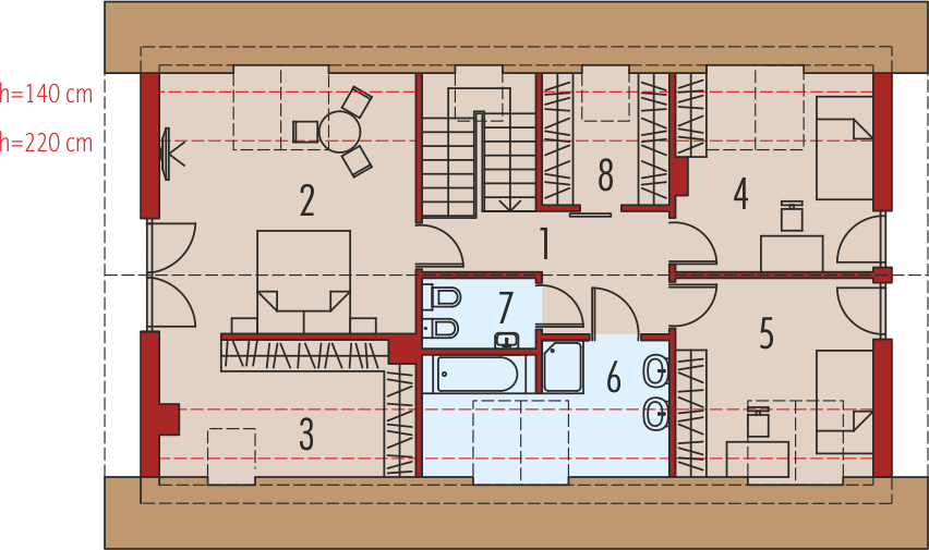
Charakterystyka: Dom parterowy z poddaszem użytkowym, niepodpiwniczony, z garażem dwustanowiskowymPrzeznaczenie: Dom dla 4-5-osobowej rodzinyTechnologia i konstrukcja: Ściany zewnętrzne: murowane, dwuwarstwowe, izolacja wełna mineralna grubości 20 cm Strop: gęstożebrowy Dach: konstrukcja drewniana, izolacja wełna mineralna 30 cm, dachówka płaska lub inna o podobnych parametrach Rozwiązania instalacyjne: Ogrzewanie: kocioł gazowy, rozprowadzenie ciepła: grzejniki Wentylacja: grawitacyjna Wykończenie:Elewacje: tynk cienkowarstwowy mineralny w kolorze TO-OR001 z palety firmy Termo Organika i okładzina drewnianaStolarka okienna: drewniana, PCV lub aluminiowaWersje w serii Benjamin - zapytaj o dostępność: – Benjamin G1 ENERGO – wersja podstawowa, standardowe instalacje – Benjamin G1 ENERGO PLUS – taki sam układ funkcji jak w wersji podstawowej, instalacje energooszczędne: pompa ciepła, wentylacja mechaniczna i panele fotowoltaiczne– Benjamin II G2 ENERGO – taki sam układ funkcji jak w wersji podstawowej, garaż 2-stanowiskowy, inne wykończenie elewacji, standardowe instalacje– odbicie lustrzane do każdej wersjiWszystkie wersje domów możliwe w dwóch standardach/wariantach instalacyjnych: – ENERGO: kocioł gazowy kondensacyjny, grzejniki, wentylacja grawitacyjna, OZE: kolektory słoneczne – ENERGO PLUS: pompa ciepła, ogrzewanie podłogowe, wentylacja mechaniczna, OZE: panele fotowoltaiczne Istnieją techniczne możliwości wykonania zmian: – podpiwniczenia budynku – wykonania budynku w technologii szkieletowej – dokonania zmian funkcjonalnych wg indywidualnych wymagańAtuty projektu okiem architekta:- Bryła sprzyjająca energooszczędności, zminimalizowane ryzyko występowania mostków termicznych- Okna o niskim współczynniku przenikania ciepła- Efektowna kompozycja elewacji- Zastosowanie oryginalnych rozwiązań materiałowych- Ciekawie zaprojektowane detale- Dobre parametry cieplne- Funkcjonalne i ergonomiczne wnętrze- Wygodny salon z kominkiem- Komfortowa sypialnia z garderobą na poddaszu- Duży salon łazienkowy na poddaszu- Duże pomieszczenie kotłowni, które pozwala na zastosowanie dowolnego źródła ogrzewania
