Informujemy, iż nasz sklep internetowy wykorzystuje technologię plików cookies a jednocześnie nie zbiera w sposób automatyczny żadnych informacji, z wyjątkiem informacji zawartych w tych plikach (tzw. „ciasteczkach”).

Bryza dr-S (DR-S)

  • Tylko online

Dane techniczne

powierzchnia
110.96 m²
wysokość
8.49 m
kąt dachu
40 °
szerokość działki
24.74 m
Liczba pokoi
7
Powierzchnia zabudowy
113.06
kondygnacje
z poddaszem użytkowym
garaż
z garażem 1 st.
dach
dach wielospadowy
konstrukcja
szkieletowe
zabudowa
domy wolnostojące
piwnica
bez piwnicy
kubatura
537 m³
dostępne odbicie lustrzane
Nie
Pow. użytkowa
110.96 m²
długość działki
20.48 m
Liczba łazienek
1
Powierzchnia całkowita
218.02
Powierzchnia dachu
227 m²

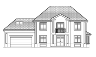
Opis projektu

Jednorodzinny budynek mieszkalny, parterowy z użytkowym poddaszem, przeznaczony dla 4-osobowej rodziny. Na parterze przewidziano część dzienną – kuchnię z jadalnią, salon i dodatkowy pokój, oraz część gospodarczą – kotłownię, wc oraz garaż. Na piętrze przewidziano trzy sypialnie oraz łazienkę. Częściowo zadaszony taras.Ściany: szkielet drewniany, Stropy: belki drewniane + wełna mineralna, Dach: dachówka cementowa, kąt nachylenia 40°

Rzuty

parter
1 wiatrołap
2.17
2 korytarz/komunikacja
3.16
3 kuchnia/jadalnia
11.3
4 salon
20.08
5 pokój
10.84
6 korytarz/komunikacja
8.8
7 schody
5.78
8 wc
1.69
9 kotłownia
5.08
10 garaż
19.76
poddasze
1 korytarz/komunikacja
5.57
2 sypialnia
10.77
3 garderoba
1.12
4 garderoba
1.12
5 sypialnia
13.29
6 łazienka
3.64
7 sypialnia
6.55

Elewacje

Sytuacja

O autorze projektu Bryza dr-S (DR-S)

Kategoria: Projekty domów
Pracownia: MTM STYL
4 150 zł

Tylko u nas możesz negocjować cenę!
Skorzystaj z tej możliwości.

Lustrzane odbicie: niedostępne.

Masz dodatkowe pytania?
Zadzwoń lub zamów rozmowę.

Zamów rozmowę

Pomożemy Ci dopasować do twoich potrzeb mymarzony projekt, wpisz swój numer telefonu nasz konsultant oddzwoni.

Negocjuj cenę projektu Bryza dr-S (DR-S)

Zapytaj pytanie o projekt Bryza dr-S (DR-S)

Oceny i komentarze

Napisz swoją opinię