- Tylko online
Masz pytania? Chciałbyś negocjować cenę
Zadzwoń! 577 575 011
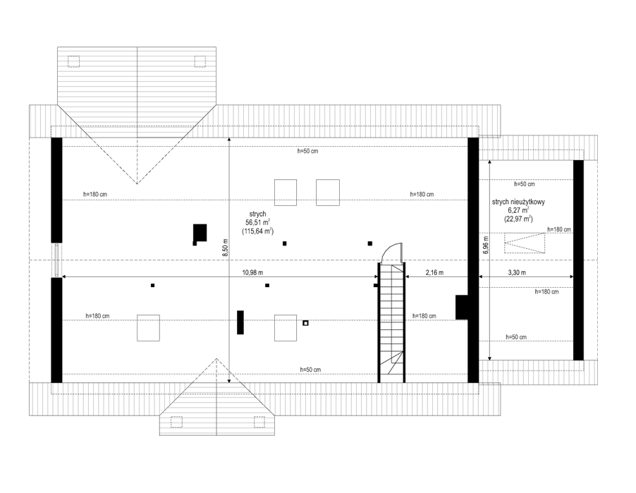
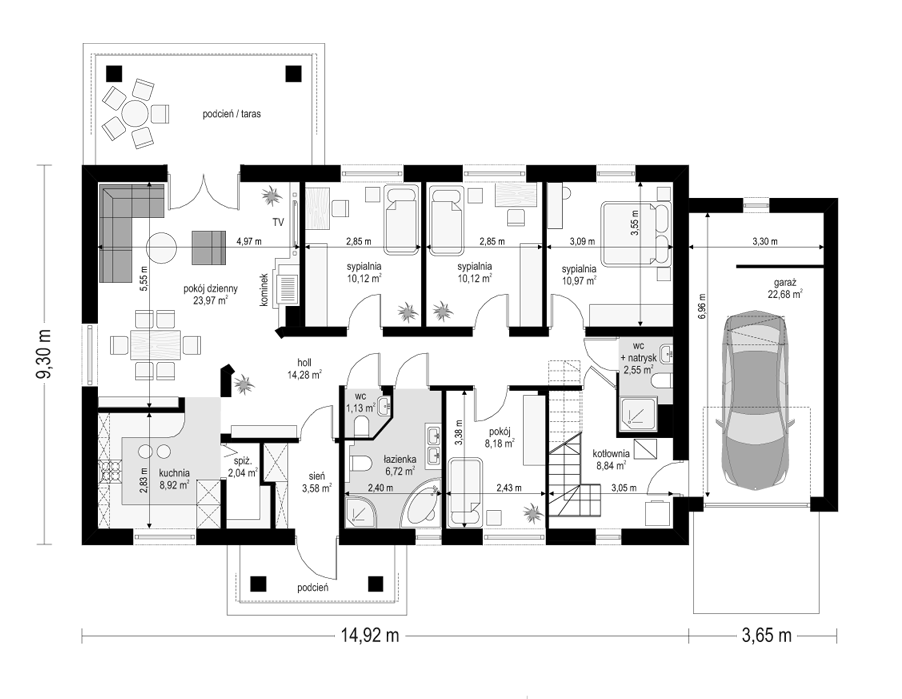
Projekt domu Anatol 2 to kolejna odsłona popularnego projektu domu jednorodzinnego Anatol. Jest to parterowy domek, przeznaczony do zamieszkania dla 4- 6-osobowej rodziny. Dzięki dużemu strychowi, który można zaadaptować na poddasze użytkowe, dom doskonale sprawdzi się dla rozwojowej, rosnącej rodziny, której potrzeby mogą się zwiększać. Dzięki strychowi do adaptacji w łatwy sposób można uzyskać dodatkową powierzchnię mieszkalną. Architektonicznie dom jest prostą ponadczasową bryłą, zbudowaną na planie prostokąta, przekrytą dwuspadowymi dachami. Dobrze dobrane proporcje elewacji, oraz nowoczesne materiały wykończeniowe, dają domowi atrakcyjny i przyjemny dla oka wygląd. Funkcjonalne wnętrze, mieszczące wszystkie pomieszczenia mieszkalne i techniczne na parterze, dopełnia atrakcyjności domu. Na parterze zmieszczono część dzienną z salonem, kuchnią i holem, oraz sypialnie domowników - trzy sypialnie i dodatkowy pokój do pracy. Prócz tego w domu zmieściły się łazienki, garderoba, spiżarnia i kotłownia, oraz garaż. Na strych dostajemy się schodkami z kotłowni. Strych można dowolnie zagospodarować - urządzić tam dodatkowe 2-3 pokoje, lub jednoprzestrzenną powierzchnię. Dom ma prostą konstrukcję, jest łatwy w budowie. Dzięki temu koszty realizacji nie powinny być wygórowane. Dzięki zwartej bryle i dobrym izolacjom dom jest ciepły i energooszczędny. Koszty utrzymania Anatola 2 nie będą wysokie. Zapraszamy do zapoznania się z pełną ofertą pracowni MG Projekt: projekt domu Anatol.

idealny na letniskowy?
O rany! Domek jest naprawdę cudowny. Zwłaszcza zwraca się uwagę na fantastyczną elewację. Planujemy zakup gotowego projektu domu od Archido, który będzie trochę większym domkiem letniskowym dla całej rodziny. Mamy działkę nad Pilicą i chcemy ją jakoś spożytkować, a to rozwiązanie wydaje się idealne. Jeżeli będzie to ten projekt, zdecydowanie wybierzemy pokrycie dachu łupkiem. To doda mu jeszcze więcej uroku!