Informujemy, iż nasz sklep internetowy wykorzystuje technologię plików cookies a jednocześnie nie zbiera w sposób automatyczny żadnych informacji, z wyjątkiem informacji zawartych w tych plikach (tzw. „ciasteczkach”).

D144C - WT2021

  • Tylko online

Dane techniczne

powierzchnia
82.56 m²
wysokość
7.45 m
kąt dachu
40 °
szerokość działki
18.3 m
Liczba pokoi
3
Powierzchnia zabudowy
76.5
kondygnacje
z poddaszem użytkowym
garaż
bez garażu
dach
dach dwuspadowy
konstrukcja
murowane
zabudowa
domy wolnostojące
piwnica
bez piwnicy
kubatura
425 m³
dostępne odbicie lustrzane
Nie
Pow. użytkowa
82.56 m²
długość działki
17.1 m
Liczba łazienek
2

Opis projektu

Dom D144C WT2021 jest skierowany do naszych klientów, szukających niewielkiego, nowoczesnego domu parterowego z  poddaszem. Prosta, czysta bryła oraz harmonijny podział w elewacjach czynią ten dom klasycznie eleganckim. Podstawowym założeniem przyjętym przy projekcie budynku było stworzenie funkcjonalnego i ciekawego wnętrza na niewielkim metrażu. W elewacji budynku poprzez materiał zaakcentowano wyraźnie, strefę wejściową. W bryle budynku oddzielono także funkcję mieszkalną dzienną od nocnej, jak również strefę mieszkalną od strefy gospodarczej. D144C WT2021 jest też idealną propozycją na dom letniskowy.

Rzuty

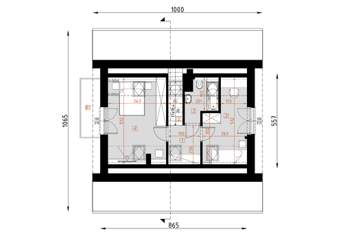
Parter
1 przedsionek
2.43
2 hall
5.06
3 łazienka
3.38
4 sypialnia
10.36
5 kuchnia/spiżarnia
5.64
6 salon / jadalnia
22.16
7 kotłownia
6.03
8 taras 1
15
9 taras 2
3.87
Poddasze
1 korytarz
3.91
2 łazienka
3.17
3 pokój
9.12
4 sypialnia 1
14.05
5 schody
3.28
6 balkon 1
4.08

Elewacje

Sytuacja

O autorze projektu D144C - WT2021

3 999 zł

Tylko u nas możesz negocjować cenę!
Skorzystaj z tej możliwości.

Lustrzane odbicie: niedostępne.

Masz dodatkowe pytania?
Zadzwoń lub zamów rozmowę.

Zamów rozmowę

Pomożemy Ci dopasować do twoich potrzeb mymarzony projekt, wpisz swój numer telefonu nasz konsultant oddzwoni.

Negocjuj cenę projektu D144C - WT2021

Zapytaj pytanie o projekt D144C - WT2021

Oceny i komentarze

Napisz swoją opinię