- Tylko online
Masz pytania? Chciałbyś negocjować cenę
Zadzwoń! 577 575 011
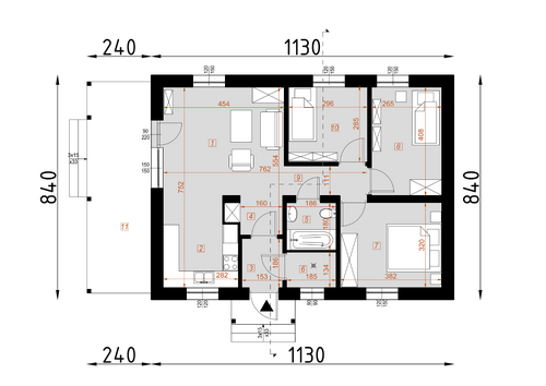
Niewielki dom mieszkalny jednorodzinny, parterowy, nie podpiwniczony. Parter składa się z kuchni połączonej z pokojem dziennym (z wyjściem do ogrodu poprzez taras ),trzech pokoi, łazienki oraz niewielkiego pomieszczenia technicznego.
