Informujemy, iż nasz sklep internetowy wykorzystuje technologię plików cookies a jednocześnie nie zbiera w sposób automatyczny żadnych informacji, z wyjątkiem informacji zawartych w tych plikach (tzw. „ciasteczkach”).

D178A - Piotr A WT2021

  • Tylko online

Dane techniczne

powierzchnia
89.75 m²
wysokość
7.3 m
kąt dachu
45 °
szerokość działki
19.15 m
Liczba pokoi
4
Powierzchnia zabudowy
76.1
kondygnacje
z poddaszem użytkowym
garaż
bez garażu
dach
dach dwuspadowy
konstrukcja
murowane
zabudowa
domy wolnostojące
piwnica
z sutereną
kubatura
472 m³
dostępne odbicie lustrzane
Nie
Pow. użytkowa
89.75 m²
długość działki
14.82 m
Liczba łazienek
1

Opis projektu

Dom jednorodzinny z poddaszem użytkowym oraz piwnicą. Na parterze znajduje się salon wraz z kominkiem, połączony z kuchnią, oraz dwa pokoje i łazienka. Schodami przedostajemy się do piwnicy, w której jest zlokalizowane pomieszczenie techniczne i pomieszczenie pomocnicze. Na poddaszu znajdują się dwa pokoje sypialne.

Rzuty

Parter
1 wiatrołap
1.23
2 hall
7.53
3 łazienka
3.5
4 kuchnia
5.17
5 pokój dzienny
16.51
6 sypialnia
10.83
7 sypialnia
7.8
8 schody
2.04
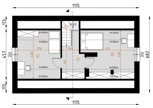
Poddasze
1 korytarz
5.46
2 sypialnia
12.78
3 sypialnia
14.61
4 schody
2.3
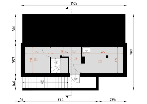
Piwnica
1 hall
5.66
2 magazyn
7.35
3 kotłownia
11.81

Elewacje

Sytuacja

O autorze projektu D178A - Piotr A WT2021

3 799 zł

Tylko u nas możesz negocjować cenę!
Skorzystaj z tej możliwości.

Lustrzane odbicie: niedostępne.

Masz dodatkowe pytania?
Zadzwoń lub zamów rozmowę.

Zamów rozmowę

Pomożemy Ci dopasować do twoich potrzeb mymarzony projekt, wpisz swój numer telefonu nasz konsultant oddzwoni.

Negocjuj cenę projektu D178A - Piotr A WT2021

Zapytaj pytanie o projekt D178A - Piotr A WT2021

Oceny i komentarze

Napisz swoją opinię