- Tylko online
Masz pytania? Chciałbyś negocjować cenę
Zadzwoń! 577 575 011
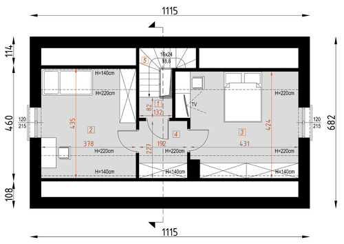
Dom jednorodzinny z poddaszem użytkowym - wersja bez podpiwniczenia. Na parterze znajduje się salon wraz z kominkiem, połączony z kuchnią, oraz dwa pokoje i łazienka.Na poddaszu znajdują się dwa pokoje sypialne. Wersja z piwnicą - D178A
