Informujemy, iż nasz sklep internetowy wykorzystuje technologię plików cookies a jednocześnie nie zbiera w sposób automatyczny żadnych informacji, z wyjątkiem informacji zawartych w tych plikach (tzw. „ciasteczkach”).

D219B - WT2021

  • Tylko online

Dane techniczne

powierzchnia
205.4 m²
wysokość
8.49 m
kąt dachu
40 °
szerokość działki
19.84 m
Liczba pokoi
8
Powierzchnia zabudowy
168.74
kondygnacje
z poddaszem użytkowym
garaż
z garażem 1 st.
dach
dach dwuspadowy
konstrukcja
murowane
zabudowa
domy bliźniacze
piwnica
bez piwnicy
kubatura
983 m³
dostępne odbicie lustrzane
Nie
Pow. użytkowa
205.4 m²
długość działki
23.15 m
Liczba łazienek
4

Opis projektu

Dom D219B to przykład nowoczesnej miejskiej willi bliźniaczej. Prosta, czysta bryła oraz harmonijny podział w elewacjach czynią ten dom prostym i eleganckim. Dzięki temu koszty poniesione na budowę zostały mocno zredukowane. Dodatkowym założeniem przyjętym przy projekcie budynku było harmonijne wpisanie się zarówno w naturalny krajobraz jak również w krajobraz miejski. Jest to budynek parterowy z poddaszem użytkowym, kryty dwuspadowym dachem. W elewacji budynku poprzez materiał zaakcentowano wyraźnie, strefę wejściową. W bryle budynku oddzielono także funkcję mieszkalną dzienną od nocnej, jak również strefę mieszkalną od strefy gospodarczej.   Cena dotyczy całości bliźniaka.     Powierzchnia użytkowa lokal A 102,88 m2 Powierzchnia użytkowa lokal B 102,52 m2

Rzuty

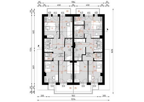
Parter
1
0
2 hall
5.94
3 kuchnia
7
4 salon+jadalnia
27.05
5 wc
3.15
6 korytarz
0.73
7 garaż
16.21
8 kotłownia
3.55
9 lokal b:
0
10 hall
5.94
11 kuchnia
7
12 salon+jadalnia
27.05
13 wc
3.15
14 korytarz
0.73
15 garaż
16.21
16 kotłownia
3.55
Poddasze
1
0
1 schody
4.01
1 korytarz
9
1 pokój
10.52
1 pokój
9.14
1 pralnia
2.12
1 łazienka
5.42
1 pokój
9.88
1 pokój
9.77
10 lokal b:
0
1 schody
4.01
1 korytarz
6.84
1 sypialnia
12.7
1 łazienka
4.07
1 garderoba
2.67
1 łazienka
7.5
1 pokój
9.88
1 pokój
9.77
1 garderoba
2.11

Elewacje

Sytuacja

O autorze projektu D219B - WT2021

5 299 zł

Tylko u nas możesz negocjować cenę!
Skorzystaj z tej możliwości.

Lustrzane odbicie: niedostępne.

Masz dodatkowe pytania?
Zadzwoń lub zamów rozmowę.

Zamów rozmowę

Pomożemy Ci dopasować do twoich potrzeb mymarzony projekt, wpisz swój numer telefonu nasz konsultant oddzwoni.

Negocjuj cenę projektu D219B - WT2021

Zapytaj pytanie o projekt D219B - WT2021

Oceny i komentarze

Napisz swoją opinię