- Tylko online
Masz pytania? Chciałbyś negocjować cenę
Zadzwoń! 577 575 011
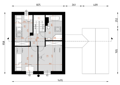
D73 WT2021 to nowoczesny projekt w wresji murowanej.
