Informujemy, iż nasz sklep internetowy wykorzystuje technologię plików cookies a jednocześnie nie zbiera w sposób automatyczny żadnych informacji, z wyjątkiem informacji zawartych w tych plikach (tzw. „ciasteczkach”).

D97 - Marcjanna WT2021 wersja drewniana

  • Tylko online

Dane techniczne

powierzchnia
107.83 m²
wysokość
7.42 m
kąt dachu
37 °
szerokość działki
19.75 m
Liczba pokoi
4
Powierzchnia zabudowy
87.71
kondygnacje
z poddaszem użytkowym
garaż
bez garażu
dach
dach dwuspadowy
konstrukcja
szkieletowe
zabudowa
domy wolnostojące
piwnica
bez piwnicy
kubatura
550 m³
dostępne odbicie lustrzane
Nie
Pow. użytkowa
107.83 m²
długość działki
16.46 m
Liczba łazienek
1

Opis projektu

Budynek jednorodzinny parterowy z poddaszem. Duża kuchnia, salon, trzy sypialnie, 2 łazienki. Dom mieszkalny, jednorodzinny, parterowy, z użytkowym poddaszem. Parter składa się z pokoju dziennego (z kominkiem i wyjściem do ogrodu poprzez taras), gabinetu. Kuchni, WC, pomieszczenia technicznego i hallu ze schodami prowadzącymi na poddasze mieszkalne oraz przedsionka. Poddasze składa się z trzech sypialni. Dużej łazienki z oknem i garderoby. Dom zaprojektowany został w technologii lekkiego szkieletu amerykańskiego, dzięki czemu charakteryzuje się bardzo szybkim cyklem realizacji i niską ceną.

Rzuty

Parter
1 wiatrołap
2.27
2 hol
8.53
3 kuchnia
12.72
4 salon
23.84
5 pokój
14.35
6 wc
1.38
7 pom. gospodarcze
4.61
8 schody
2.7
9 ganek
7.54
10 taras
8.36
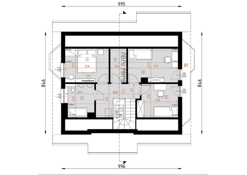
Poddasze
1 hol
5.7
1 łazienka
4.92
1 pokój
7.63
1 garderoba
2.82
1 pokój
8.51
1 pokój
6.7
1 schody
1.15
8 balkon
4.27

Elewacje

Sytuacja

O autorze projektu D97 - Marcjanna WT2021 wersja drewniana

3 799 zł

Tylko u nas możesz negocjować cenę!
Skorzystaj z tej możliwości.

Lustrzane odbicie: niedostępne.

Masz dodatkowe pytania?
Zadzwoń lub zamów rozmowę.

Zamów rozmowę

Pomożemy Ci dopasować do twoich potrzeb mymarzony projekt, wpisz swój numer telefonu nasz konsultant oddzwoni.

Negocjuj cenę projektu D97 - Marcjanna WT2021 wersja drewniana

Zapytaj pytanie o projekt D97 - Marcjanna WT2021 wersja drewniana

Oceny i komentarze

Napisz swoją opinię