- Tylko online
Masz pytania? Chciałbyś negocjować cenę
Zadzwoń! 577 575 011
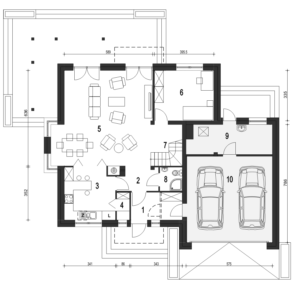
Projekt Diana to dom jednorodzinny wolnostojący z wbudowanym garażem, przeznaczony dla 4 osobowej rodziny. Dom ma tradycyjną architekturę, z lukarnami, balkonami i wielospadowym dachem bez kalenicy. Elewacjom nadano jednak współczesny charakter. Zaprojektowano tutaj duży salon i sporą kotłownię na paliwo stałe. Każda sypialnia na poddaszu posiada balkon, a sypialnia główna posiada prywatną garderobę i łazienkę.
