- Tylko online
Masz pytania? Chciałbyś negocjować cenę
Zadzwoń! 577 575 011
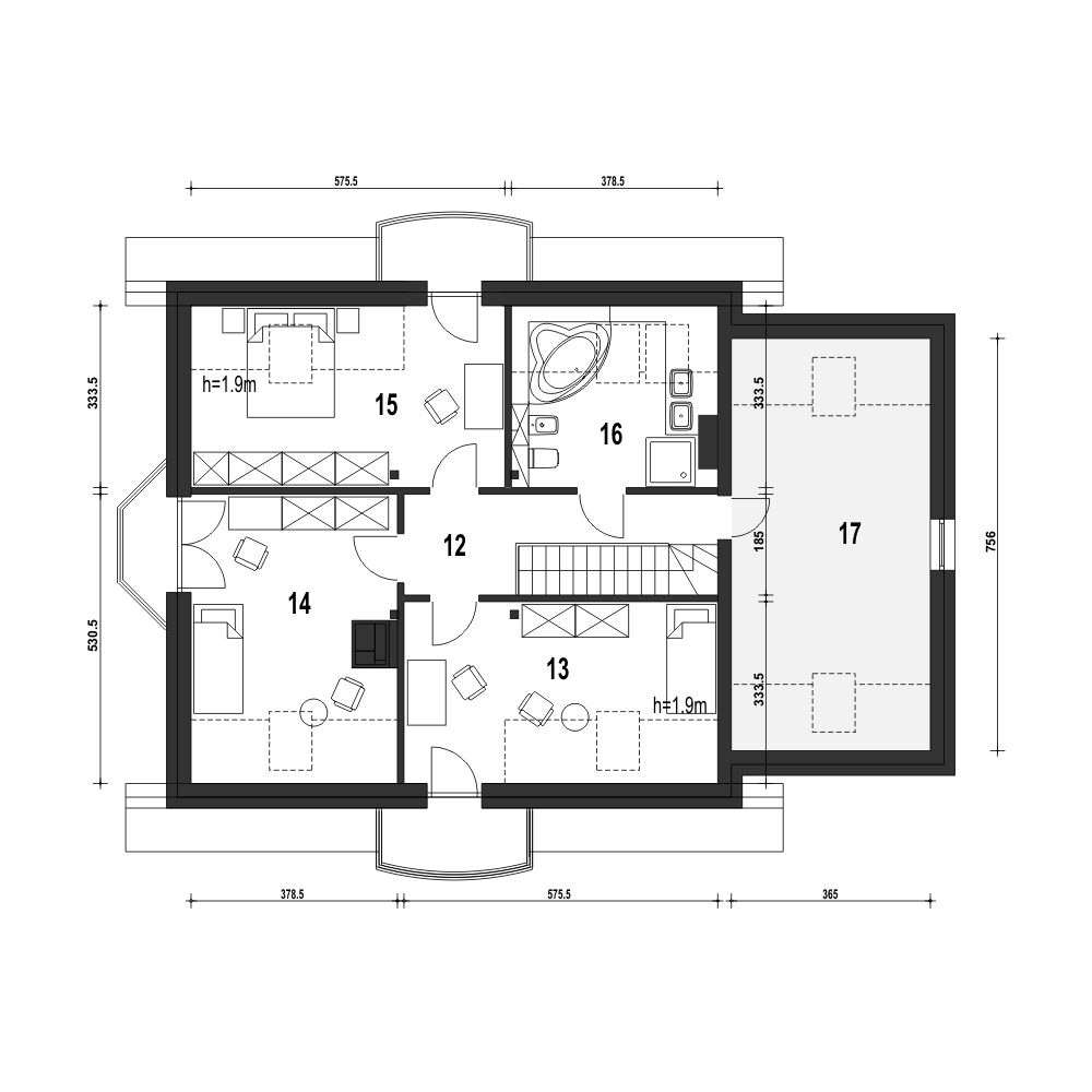
Dom Dla Ciebie 1 w3 z garażem jednospadowym przeznaczony jest dla 4ro osobowej rodziny , zaprojektowany jest z zachowaniem podziału na dwie strefy: dzienną na parterze i nocną na poddaszu. Na parterze mamy zaprojektowany wiatrołap, hol, kuchnię, salon z jadalnią i kominkiem oraz pokój usytuowanego od strony ogrodowej. Przy schodach mamy zaprojektowaną łazienkę z wanną oraz osobna pralnię. Obok mamy wejście do garażu oraz kotłowni. Poddasze obejmuje trzy ustawne i dobrze doświetlone pokoje, każdy pokój z własnym balkonem. Na poddaszu zaprojektowano ogólnie dostępną łazienkę z narożną wanną i prysznicem. Nad garażem mamy do dyspozycji strych, który można wykorzystać na etapie adaptacji jako dodatkowe pomieszczenie np.: pokój, garderobę lub pomieszczenie rekreacyjne. Poddasze zaprojektowane jest pod dwuspadowym dachem opartym na tradycyjnej więźbie i ściance kolankowej. Projekt Dom Dla Ciebie 1 w3, to idealna propozycją domu dla osób poszukujących tradycyjnego domu o stylowej architekturze i przemyślanej funkcji.fundamenty: BETONOWE ściany zewnętrzne: POROTHERM+STYROPIAN TERMO ORGANIKA rodzaj stropu: TERIVA I elewacje: TYNK STRUKTURALNY, OKŁADZINA KLINKIEROWA pokrycie dachu: DACHÓWKA CEMENTOWA, CERAMICZNA lub BLACHA DACHÓWKO PODOBNA
