- Tylko online
Masz pytania? Chciałbyś negocjować cenę
Zadzwoń! 577 575 011
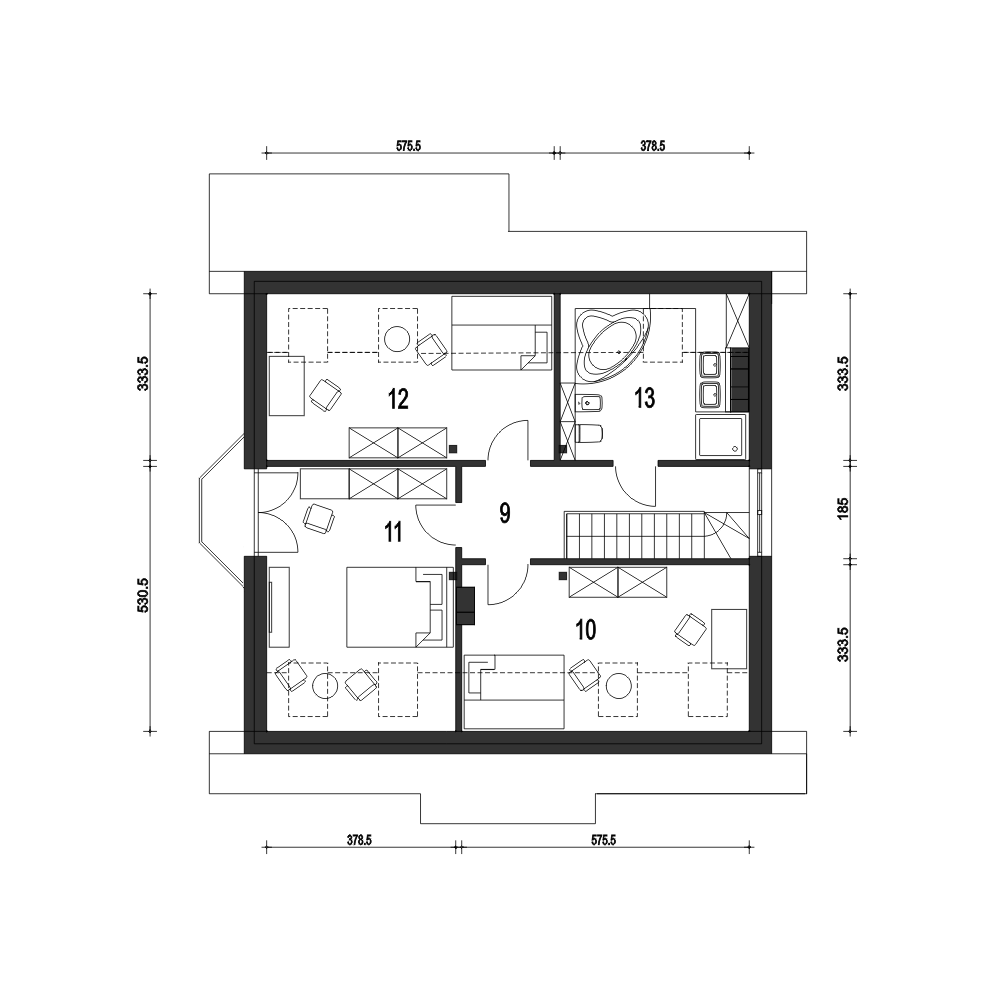
Dom Dla Ciebie 2 w wariancie bez garażu to drugi dom z serii domów stylowych. Jest to projekt uroczego domu z poddaszem użytkowym, przeznaczony dla 4ro osobowej rodziny. Dom zaprojektowany został z zachowaniem podziału na strefy: ogólnie dostępną i prywatną. Na parterze przewidziano strefę ogólnie dostępna i mamy tu wiatrołap z wnękowymi szafami, hol, kuchnię ze spiżarnią, salon z jadalnią i kominkiem oraz pokój od frontu, który może służyć jako gabinet. Mamy tu też niedużą łazienkę z prysznicem oraz kotłownię z pralnią. Na poddasze prowadzą jednobiegowe schody, którymi ostaniemy się do przedpokoju prowadzącego do 3 wygodnych i dobrze oświetlonych pokoi z balkonami. Jest tu także ogólnie dostępną łazienka z narożną wanną i prysznicem. Poddasze wygospodarowano pod dwuspadowym dachem zaprojektowanym na tradycyjnej więźbie dachowej opartej na ściance kolankowej. Projekt domu Dom Dla Ciebie 2, to propozycja domu dla szukających projektu tradycyjnego domu o współczesnej architekturze oraz funkcjonalnym wnętrzu.
