- Tylko online
Masz pytania? Chciałbyś negocjować cenę
Zadzwoń! 577 575 011
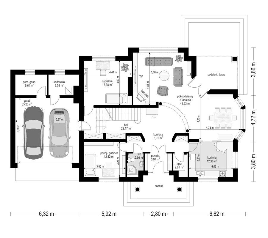
Projekt domu Benedykt 5 to kolejna odsłona popularnego projektu Benedykt. Od wersji podstawowej projektu różni się podwójnym garażem, trzema lukarnami na poddaszu, wychodzącymi na każdą stronę budynku, oraz dodatkowo: wejściem kolumnowym z balkonikiem, oraz wykuszem w jadalni. W projekcie Benedykt 5, dzięki powiększeniu części garażowej i przeniesieniu kotłowni uzyskano dodatkowy pokój na parterze. Na poddaszu, nad garażem zaprojektowano dużą część rekreacyjną. Poddasze jest większe, niż w wersji podstawowej projektu, dzięki zwiększeniu wysokości ścian kolankowych. Pracownia posiada również odbicie lustrzane projektu Benedykt 5. Zapraszamy do zapoznania się z pełną ofertą pracowni MG Projekt: projekt domu Benedykt, projekt domu Benedykt 2, projekt domu Benedykt 3, projekt domu Benedykt 4, projekt domu Benedykt 5, projekt domu Benedykt Bliźniak.
