Informujemy, iż nasz sklep internetowy wykorzystuje technologię plików cookies a jednocześnie nie zbiera w sposób automatyczny żadnych informacji, z wyjątkiem informacji zawartych w tych plikach (tzw. „ciasteczkach”).
Polubione projekty0
()
Przepraszam!
Nie znaleziono danych. Dodaj do ulubionych pierwszy.
G23 garaż jednostanowiskowy z pomieszczeniem gospodarczym
Tylko online
Dane techniczne
powierzchnia
38.17 m²
wysokość
5.02 m
kąt dachu
30 °
szerokość działki
15 m
Liczba pokoi
2
Powierzchnia zabudowy
41.14
kondygnacje
parterowe
garaż
bez garażu
konstrukcja
murowane
zabudowa
domy wolnostojące
piwnica
bez piwnicy
kubatura
177 m³
dostępne odbicie lustrzane
Nie
Pow. użytkowa
38.17 m²
długość działki
14.65 m
Opis projektu
Garaż jednostanowiskowy, wolnostojący, parterowy z pom. gospodarczym. Brama garażowa o wymiarach 2400x2200. Garaż posiada dodatkowo pomieszczenie gospodarcze.
Rzuty
Przyziemie
1.
garaż
25.74
2.
pom. gospodarcze
8.17
3.
skład drewna
4.26
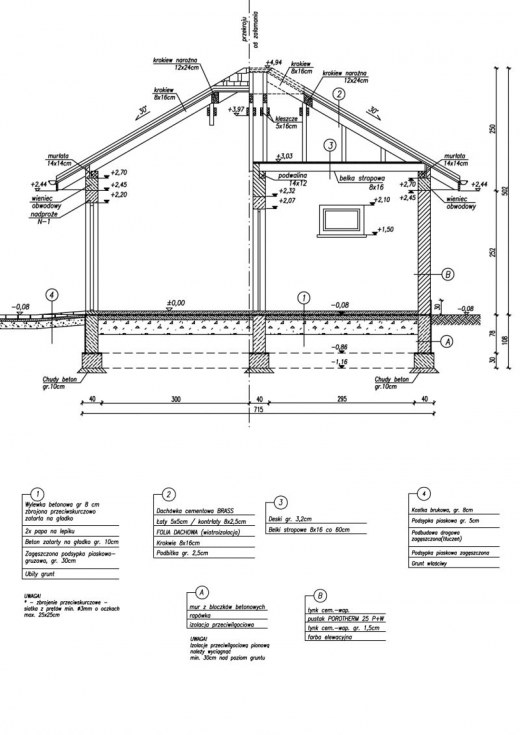
Przekrój
O autorze projektu G23 garaż jednostanowiskowy z pomieszczeniem gospodarczym
Dobrym pomysłem jest garaż z dodatkowym pomieszczenie gospodarczym właśnie taki jak ten. Od dawna szukam czegoś niedużego, dobrze rozplanowanego i przy okazji niedrogiego. Ten jest odpowiedni na moją kieszeń, w środku zmieszczą się moje narzędzie, dzięki oddzieleniu przestrzeni, a z boku pod daszkiem da się w dodatku przechowywać drewno.
Garaż jednostanowiskowy, wolnostojący, parterowy z pom. gospodarczym. Brama garażowa o wymiarach 2400x2200. Garaż posiada dodatkowo pomieszczenie gospodarcze.
Technologia tradycyjna,
ściany murowane grubości 25 cm,
konstrukcja więźby dachowej drewniana,
pokrycie dachówka ceramiczna.
Projekt garażu składa się z czterech egzemplarzy a w tym części architektonicznej, konstrukcyjnej i instalacji wewnętrznej elektrycznej. W projekcie załączone są podstawowe zestawienie stali, drewna i stolarki okienno-drzwiowej. Do projektu dołączamy bezpłatną zgodę na wprowadzenie zmian, oświadczenie projektant
Dobrym pomysłem jest garaż z dodatkowym pomieszczenie gospodarczym właśnie taki jak ten. Od dawna szukam czegoś niedużego, dobrze rozplanowanego i przy okazji niedrogiego. Ten jest odpowiedni na moją kieszeń, w środku zmieszczą się moje narzędzie, dzięki oddzieleniu przestrzeni, a z boku pod daszkiem da się w dodatku przechowywać drewno.