- Tylko online
Masz pytania? Chciałbyś negocjować cenę
Zadzwoń! 577 575 011
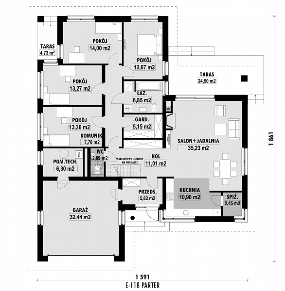
Projekt komfortowego domu E-118 należy do rodziny projektów E-114 do E-119. Prosta bryła połączona z uniwersalnym układem funkcjonalnym i dwustanowiskowym garażem. W części dziennej zaplanowano duży salon z jadalnią (szerszy o 60cm w stosunku do E-115/116) i półotwartą kuchnię ze spiżarnią. W części sypialnej: cztery sypialnie, WC oraz duża łazienka z wanną i prysznicem. Wysokość pomieszczeń parteru wynosi 2,95m. Atutem domu jest też duża garderoba. Na poddaszu pokazujemy powierzchnię możliwą do zaadaptowania. Dla zobrazowania jej wielkości, na rysunku podano powierzchnię netto poddasza, tj. po obrysie ścian.
