- Tylko online
Masz pytania? Chciałbyś negocjować cenę
Zadzwoń! 577 575 011
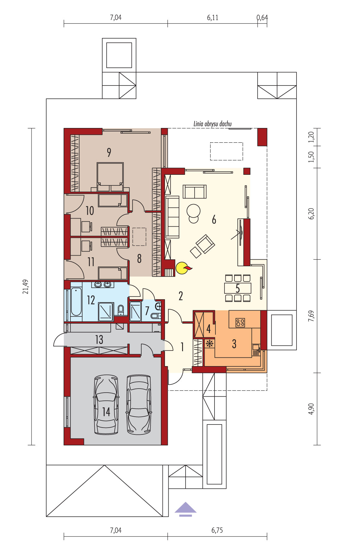
Charakterystyka: dom parterowy, niepodpiwniczony, z garażem dwustanowiskowym Przeznaczenie: dom dla 2-4-osobowej rodziny Technologia i konstrukcja: Ściany zewnętrzne: murowane, dwuwarstwowe, beton komórkowy firmy H+H 24 cm, ocieplenie styropian Termo Organika 20 cm Ściany wewnętrzne: nośne i działowe murowane, beton komórkowy firmy H+H 24 cm i 12 cm Strop: żelbetowy prefabrykowany Filigran, ocieplenie wełna mineralna 30 cm Dach: stropodach płaski, dach zielonyRozwiązania instalacyjne: Ogrzewanie: kocioł gazowy kondensacyjny firmy Viessmann, rozprowadzenie ciepła: grzejniki Wentylacja: grawitacyjnaOZE: kolektory słoneczne Wykończenie: Elewacje: tynk cienkowarstwowy mineralny w kolorze białym TO-PA001 z palety firmy Termo Organika, okładzina drewniana i kamienna Stolarka: aluminiowa firmy Reynaers Aluminium, okna do dachów płaskich firmy FAKRO, żaluzje przeciwsłoneczne Otoczenie: kostka betonowa i płyty tarasowe firmy Libet, system tarasowy ProDeck - deska kompozytowa Terra w kolorze orzech Wersje - zapytaj o dostępność: - EX 21 SOFT – bez garażu - EX 21 ENERGO PLUS – taki sam układ funkcjonalny, instalacje energooszczędne: pompa ciepła, ogrzewanie podłogowe, wentylacja mechaniczna, system solarny, bez garażu i za garażem dwustanowiskowym - odbicie lustrzane do każdej wersji Istnieją techniczne możliwości wykonania zmian: - podpiwniczenia budynku - wykonania budynku w technologii szkieletowej - dokonania zmian funkcjonalnych wg indywidualnych wymagań
