- Tylko online
Masz pytania? Chciałbyś negocjować cenę
Zadzwoń! 577 575 011
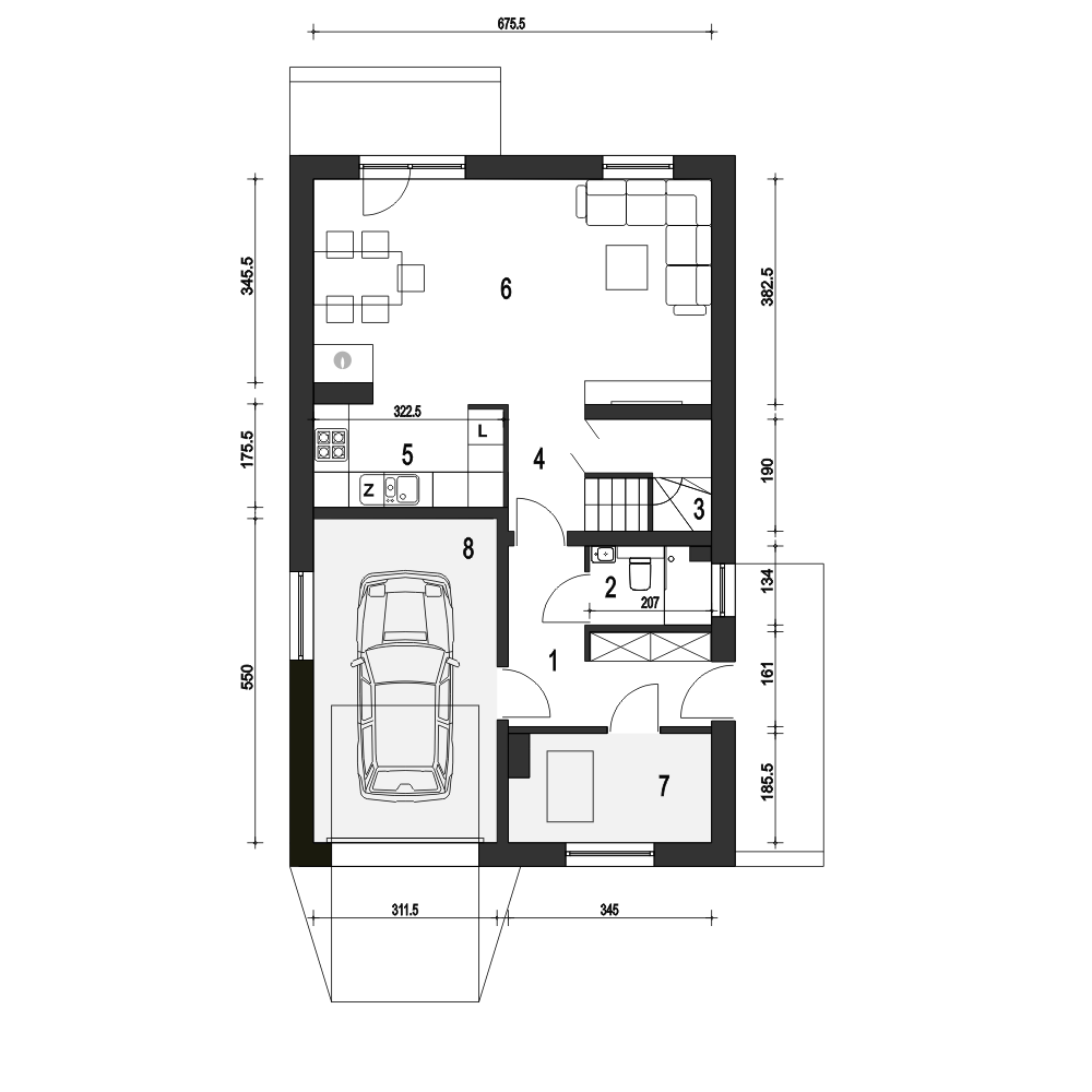
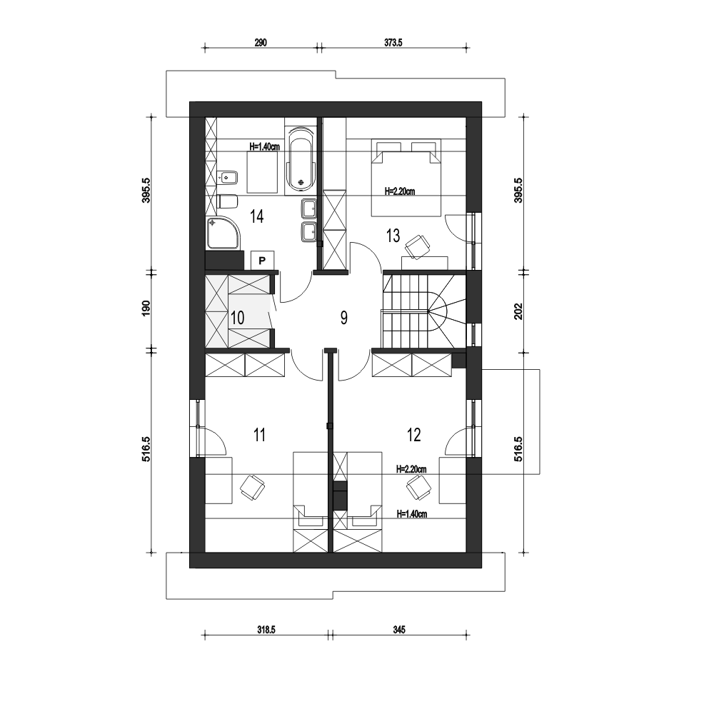
Projekt domu Głuszec jest przykładem klasycznego domu jednorodzinnego z poddaszem przeznaczonym na cele mieszkalne. Ten dwukondygnacyjny i prosty konstrukcyjnie dom jest dobrą alternatywą na wąskie działki lub do zabudowy bliźniaczej. Do budynku prowadzi zadaszone wejście usytuowane z boku budynku. Na parterze zaproponowano strefę wspólną dzienną - salon z otwartą kuchnią. Z salonu można wyjść na taras a pomiędzy kuchnią a strefą jadalni zaprojektowano kominek. Przy wejściu znajdziemy miejsce na wygodną szafę wnękową natomiast pod schodami wygospodarowano miejsce na przydatną spiżarnię. Wiatrołap prowadzi również do małej łazienki oraz do garażu i kotłowni z piecem na paliwo stałe. Kotłownię zaprojektowano od frontu budynku. Na piętrze zaproponowano trzy sypialnie, garderobę oraz duża łazienkę. Głuszec II to dom ekonomiczny w budowie i eksploatacji. Ze względów ekonomicznych zrezygnowano z balkonów i tarasów. Zastosowane portfenetry i dodatkowo okna połaciowe sprawią, że każde pomieszczenie na poddaszu będzie doskonale doświetlone. Elewację domu charakteryzuje delikatny detal i naturalna kolorystyka.fundamenty: BETONOWE ściany zewnętrzne: POROTHERM+STYROPIAN TERMO ORGANIKA rodzaj stropu: TERIVA I elewacje: TYNK STRUKTURALNY pokrycie dachu: DACHÓWKA CEM. lub CER.
