Informujemy, iż nasz sklep internetowy wykorzystuje technologię plików cookies a jednocześnie nie zbiera w sposób automatyczny żadnych informacji, z wyjątkiem informacji zawartych w tych plikach (tzw. „ciasteczkach”).

Legenda 2 (CE)

  • Tylko online

Dane techniczne

powierzchnia
203.2 m²
wysokość
7.88 m
kąt dachu
20 °
szerokość działki
30.05 m
Liczba pokoi
7
Powierzchnia zabudowy
205.9
kondygnacje
piętrowe
garaż
z garażem 2 st.
dach
dach wielospadowy
konstrukcja
murowane
zabudowa
domy wolnostojące
piwnica
bez piwnicy
kubatura
1021 m³
dostępne odbicie lustrzane
Nie
Pow. użytkowa
203.2 m²
długość działki
21.5 m
Liczba łazienek
2
Powierzchnia całkowita
310.9
Powierzchnia dachu
306 m²

Opis projektu

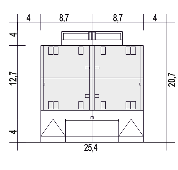
Dom jednorodzinny, parterowy, na fragmencie dwukondygnacyjny z garażem dwustanowiskowym, przeznaczony dla 5-6 osobowej rodziny. Na parterze zaprojektowano przestronną część dzienną, pokój, łazienkę, garderobę, spiżarnię i kotłownię. Na piętrze znajdują się trzy sypialnie, łazienka i pomieszczenie pomocnicze. Dom charakterem nawiązuje do willi rejonu śródziemnomorskiego.Ściany: 2-warstwowe - pustak ceramiczny + wełna mineralna, Stropy: żelbetowe, wylewane, Dach: dachówka ceramiczna, kąt nachylenia 20°

Rzuty

parter
1 wiatrołap
4.9
2 korytarz/komunikacja
17.4
3 kuchnia
14.4
4 salon
46.8
5 pokój
19.2
6 łazienka
5.4
7 garderoba
3.9
8 spiżarnia
6.9
9 kotłownia
6
10 garaż
40.3
pietro1
1 korytarz/komunikacja
11.1
2 sypialnia
22.5
3 łazienka
11.5
4 sypialnia
17.5
5 sypialnia
14.4
6 pomieszczenie gospodarcze
1.3

Elewacje

Sytuacja

O autorze projektu Legenda 2 (CE)

Kategoria: Projekty domów
Pracownia: MTM STYL
4 750 zł

Tylko u nas możesz negocjować cenę!
Skorzystaj z tej możliwości.

Lustrzane odbicie: niedostępne.

Masz dodatkowe pytania?
Zadzwoń lub zamów rozmowę.

Zamów rozmowę

Pomożemy Ci dopasować do twoich potrzeb mymarzony projekt, wpisz swój numer telefonu nasz konsultant oddzwoni.

Negocjuj cenę projektu Legenda 2 (CE)

Zapytaj pytanie o projekt Legenda 2 (CE)

Oceny i komentarze

Napisz swoją opinię