- Tylko online
Masz pytania? Chciałbyś negocjować cenę
Zadzwoń! 577 575 011
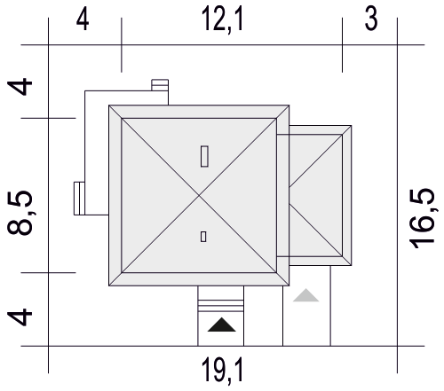
Pawilon handlowy: parterowy, niepodpiwniczony. Ściany zewnętrzne: 41,5 cm: bloczki YTONG + styropian; strop: żelbetowy; dach: dwuspadowy krokwiowo – jętkowy w konstrukcji drewnianej o kącie nachylenia 30°

!!!!!!!!!!!!!
Idealny pomysł dla małego przedsiębiorstwa, które musi mieć małą siedzibę a chce mieć wszytsko na miejscu. Na mój mały sklepik w zupełności wystarczy taki metraż. A i elewacja bardzo wyszukana. Super Archido! jestem zadowolony i to bardzo!