- Tylko online
Masz pytania? Chciałbyś negocjować cenę
Zadzwoń! 577 575 011
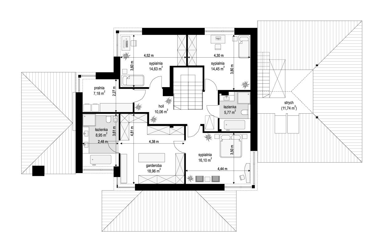
Wariant projektu ze zmianami: inny układ pomieszczeń, zmiana kąta nachylenia, zmiana zadaszenia tarasu i likwidacja antresoli
