- Tylko online
Masz pytania? Chciałbyś negocjować cenę
Zadzwoń! 577 575 011
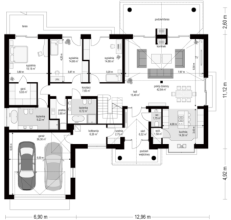
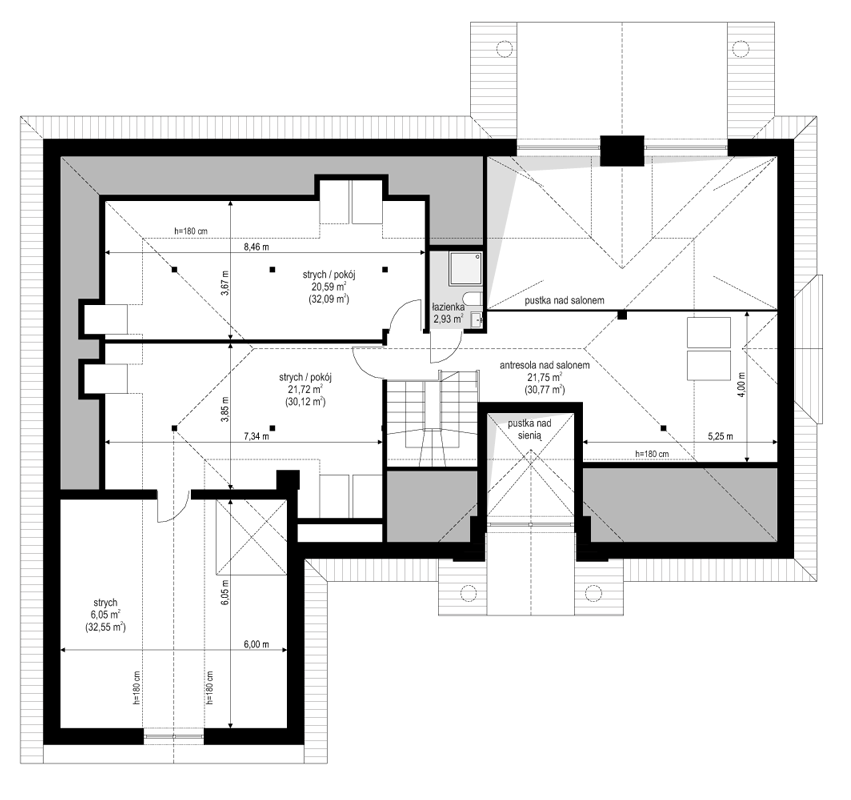
Projekt domu Willa Parkowa 4 jest kolejnym projektem z popularnej serii domów Willa parkowa – Rezydencja parkowa. Dom parterowy, z poddaszem użytkowym, zbudowany na prostokątnej bryle przykrytej czterospadowym dachem, z dobudowaną częścią garażową. Dom zaprojektowany został w nawiązaniu do tradycyjnego rezydencjonalnego stylu, z detalami podkreślającymi reprezentacyjny charakter, dającymi komfort i wrażenie luksusu. Architektura domu jest atrakcyjna, ale też stonowana i dyskretna. Projekt domu Willa Parkowa 4 nawiązuje do tradycji, ale w bardziej nowoczesnym współczesnym ujęciu. Front domu ozdabia piękny półtora kondygnacyjny portyk wejściowy, z bocznymi przeszkleniami drzwi wejściowych i łukowym naświetlem. Reprezentacyjne drzwi wejściowe zapraszają do wnętrza willi. od strony ogrodu atrakcję stanowią duże przeszklenia z poszczególnych pokoi, w tym największe wysokie przeszklenie salonu z pustką, otwierające się na zadaszony taras i ogród. Wnętrze parteru budynku podzielono funkcjonalnie na trzy częsci: cześć dzienną, z salonem z otwarciem przestrzennym na antresolę na poddaszu, kuchnią i holem, następnie na części gospodarczo –garażową, z dostępnymi z przedsionka garażem i kotłownią, oraz część nocną składającą się z trzech sypialni na parterze, oraz dodatkowych dwóch pokoi na poddaszu. Poddasze - strych można dowolnie zagospodarować. Mogą tam się mieścić pokoje, albo też można tam pozostawić nieużytkowy strych nad parterem - dowolnie. Na parterze mamy dwie łazienki i dodatkowe wc, oraz pralnię przy sypialniach. Apartament rodziców ma własną łazienkę i garderobę. Na poddaszu, jeśli strych jest zaadaptowany na poddasze, jest miejsce na dodatkową łazienkę. Dom jest zaprojektowany funkcjonalnie, praktycznie, ma wszystkie potrzebne pomieszczenia dla funkcjonowania pełnej rodziny. Dzięki strychowi jest tutaj zapas dodatkowej przestrzeni do wykorzystania. budynek ma dość prostą konstrukcję, nie powinien być trudny w budowie. Dzięki zastosowaniu energooszczędnych materiałów i instalacji, Dom Willa Parkowa 4 będzie tani w późniejszej eksploatacji. Zapraszamy do obejrzenia wszystkich projektów domów z serii Willa Parkowa: https://www.mgprojekt.com.pl/willa-parkowa, https://www.mgprojekt.com.pl/willa-parkowa-2, https://www.mgprojekt.com.pl/willa-parkowa-3, https://www.mgprojekt.com.pl/willa-parkowa-4, https://www.mgprojekt.com.pl/willa-parkowa-5, https://www.mgprojekt.com.pl/willa-parkowa-6, https://www.mgprojekt.com.pl/willa-parkowa-6-d, https://www.mgprojekt.com.pl/willa-parkowa-7, https://www.mgprojekt.com.pl/willa-parkowa-8-a, https://www.mgprojekt.com.pl/willa-parkowa-8-b, https://www.mgprojekt.com.pl/willa-parkowa-9, https://www.mgprojekt.com.pl/willa-parkowa-10, https://www.mgprojekt.com.pl/willa-parkowa-b, https://www.mgprojekt.com.pl/willa-parkowa-c, https://www.mgprojekt.com.pl/willa-parkowa-d.
