- Tylko online
Masz pytania? Chciałbyś negocjować cenę
Zadzwoń! 577 575 011
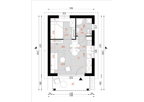
Projekt D309 jest nowoczesną formą nowoczesnego letniskowego domu rekreacji inywidualnej. Zadaszony ganek z elementami drewna idealnie wpisują się w otoczenie pełne zieleni. Domek na każda działkę, nawet o niewielkich rozmiarach.
