- Tylko online
Masz pytania? Chciałbyś negocjować cenę
Zadzwoń! 577 575 011
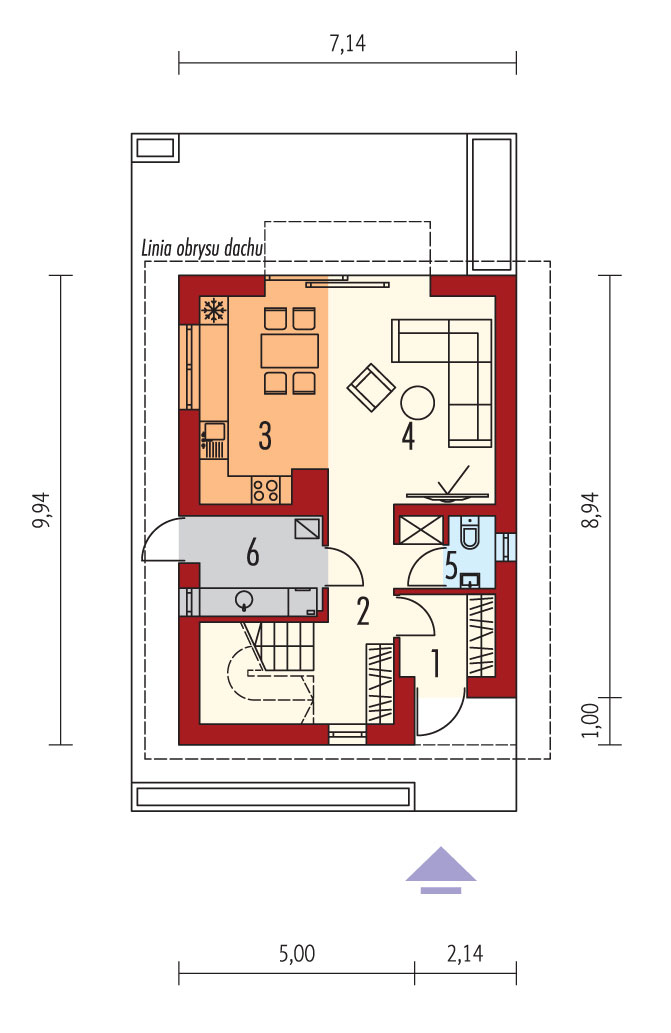
Charakterystyka: Dom parterowy z poddaszem użytkowym, niepodpiwniczonyPrzeznaczenie: Dom dla 3-4-osobowej rodziny Technologia i konstrukcja:Ściany zewnętrzne: murowane, dwuwarstwowe, beton komórkowy firmy H+H 24 cm, ocieplenie styropian Termo Organika 20 cmŚciany wewnętrzne: nośne i działowe murowane, beton komórkowy firmy H+H 24 cm i 12 cmStrop: międzypiętrowy gęstożebrowy TerivaDach: konstrukcja drewniana, ocieplenie wełna mineralna Isover 30 cm, dachówka ceramiczna płaska Bergamo firmy RöbenSchody: schody wewnętrzne drewnianeRozwiązania instalacyjne:Ogrzewanie: kocioł gazowy kondensacyjny firmy Viessmann, rozprowadzenie ciepła: grzejniki firmy PurmoWentylacja: grawitacyjnaOZE: kolektory słoneczne firmy Viessmann Dodatkowo: stacja uzdatniania wody firmy ViessmannWykończenie:Elewacje: tynk cienkowarstwowy mineralny w kolorze białym TO-PA001 z palety firmy Termo Organika, okładzina drewniana w poziomym układzie desekStolarka: drewniana, PVC lub aluminiowa, drzwi tarasowe podnoszono-przesuwne typu HS, drzwi wejściowe firmy HörmannOkna połaciowe: ozwiązania technologiczne i wyłaz dachowy firmy VELUX Pobierz ekspercki poradnik VELUX i dowiedz się jak wybrać okna dachoweOtoczenie: kostka betonowa i płyty tarasowe firmy Libet, system tarasowy ProDeck - deska kompozytowa Terra w kolorze orzechWersje - zapytaj o dostępność: - odbicie lustrzane Wszystkie wersje domów możliwe w dwóch standardach/wariantach instalacyjnych: – ENERGO: kocioł gazowy kondensacyjny, grzejniki, wentylacja grawitacyjna, OZE: kolektory słoneczne – ENERGO PLUS: pompa ciepła, ogrzewanie podłogowe, wentylacja mechaniczna, OZE: system solarny lub panele fotowoltaiczne Istnieją techniczne możliwości wykonania zmian: - podpiwniczenia budynku - wykonania budynku w technologii szkieletowej - dokonania zmian funkcjonalnych wg indywidualnych wymagań
