- Tylko online
Masz pytania? Chciałbyś negocjować cenę
Zadzwoń! 577 575 011
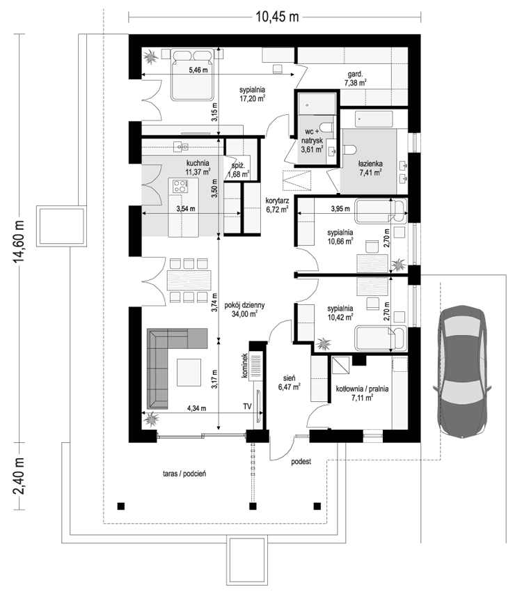
Projekt domu Dom na Południowej 2 jest to projekt niewielkiego parterowego domu jednorodzinnego, przeznaczonego dla 3- 4-osobowej rodziny, na wąską działkę z niekorzystnym usytuowaniem względem drogi dojazdowej, stron świata i nasłonecznienia, czyli dla działek z wjazdem od południa. Wielu Inwestorów posiada takie parcele i przez serię „Domów na Południowej” chcieliśmy udowodnić, że na takiej działce również da się zaprojektować i zbudować bardzo sensowny dom. Budynek zaprojektowano na planie prostokąta, przykrytego dwuspadowym dachem, z wystającym w kierunku frontu dodatkowym zadaszeniem, podzielonym na cześć wejściową, oraz część będącą zadaszeniem tarasu ogrodowego. Dom nie posiada garażu - ma z boku miejsce parkingowe, które można dość łatwo zamienić na wiatę garażową dobudowując dodatkowe zadaszenie. Patrząc na front domu: narożnik prawy to strefa wejściowa, natomiast narożnik lewy to taras i cześć wypoczynkowa. Budynek powinien być sytuowany nieco głębiej na działce, aby zapewnić odpowiednie wymiary ogrodu od frontu i z boku domu. Bryła domu jest prosta, nowoczesna, w ciekawej kolorystyce, z wyraźnie narysowanymi dwuspadowymi dachami i szczytami. Architektura domu łączy w sobie ciekawy urozmaicony detal, oraz wrażenie solidności i prostoty. Wnętrze domu podzielono na część dzienną od strony tarasu, oraz po drugiej stronie parteru - na część z pokojami sypialnymi. Do wnętrza wchodzimy przez przedsionek z szafami, połączony z kotłownią- pralnią, do jednoprzestrzennego wnętrza salonu, kuchni i holu. Narożny układ pokoju dziennego doświetla wnętrze od frontu i od boku działki. Kuchnia z wyspą i spiżarnią jest trochę cofnięta, ale stanowi część przestrzeni dziennej. Całość wnętrza zamykają trzy pokoje sypialne, z apartamentem rodziców z garderobą i własną łazienką. Nad planem parteru przewidziana jest przestrzeń strychowa do dowolnego wykorzystania, dostępna z korytarza za pomocą schodków drabinkowych. Konstrukcja domu jest bardzo prosta, łatwa i niedroga w budowie. Część murowana budynku kończy się na wieńcach nad ścianami parteru, a pozostałą konstrukcję stanowi układ drewnianych wiązarów, będących jednocześnie stropem, oraz więźbą dachową. Takie rozwiązanie znakomicie upraszcza budowę, przyspiesza ją i co najważniejsze - obniża koszt realizacji budynku. Zastosowane rozwiązania, materiały, izolacje i instalacje dają w rezultacie tani, prosty w budowie, energooszczędny dom - niedrogi w późniejszym utrzymaniu. To bardzo praktyczny wybór dla Inwestorów, którzy nie chcę spędzić następnych pięciu lat na budowie i kolejnych dziesięcioleci płacąc kredyt za zbyt duży i zbyt skomplikowany dom marzeń. Realizacja marzenia może być prosta, łatwa i przyjemna - taki właśnie jest Dom na Południowej 2. Zapraszamy !
