Informujemy, iż nasz sklep internetowy wykorzystuje technologię plików cookies a jednocześnie nie zbiera w sposób automatyczny żadnych informacji, z wyjątkiem informacji zawartych w tych plikach (tzw. „ciasteczkach”).

HOMEKONCEPT 02 G2 EN

Lustrzane odbicie
  • Tylko online

Dane techniczne

powierzchnia
165.98 m²
wysokość
8.21 m
kąt dachu
35 °
szerokość działki
25.15 m
Liczba pokoi
7
Powierzchnia zabudowy
183.55
kondygnacje
parterowe
garaż
z garażem 2 st.
dach
dach dwuspadowy
kubatura
1077 m³
dostępne odbicie lustrzane
Tak
Pow. użytkowa
165.98 m²
długość działki
25 m
Liczba łazienek
3
Powierzchnia dachu
188 m²
Euco+w
17.46 kWh/m2 rok
Ep
64.94 kWh/m2 rok

Opis projektu

Rzuty

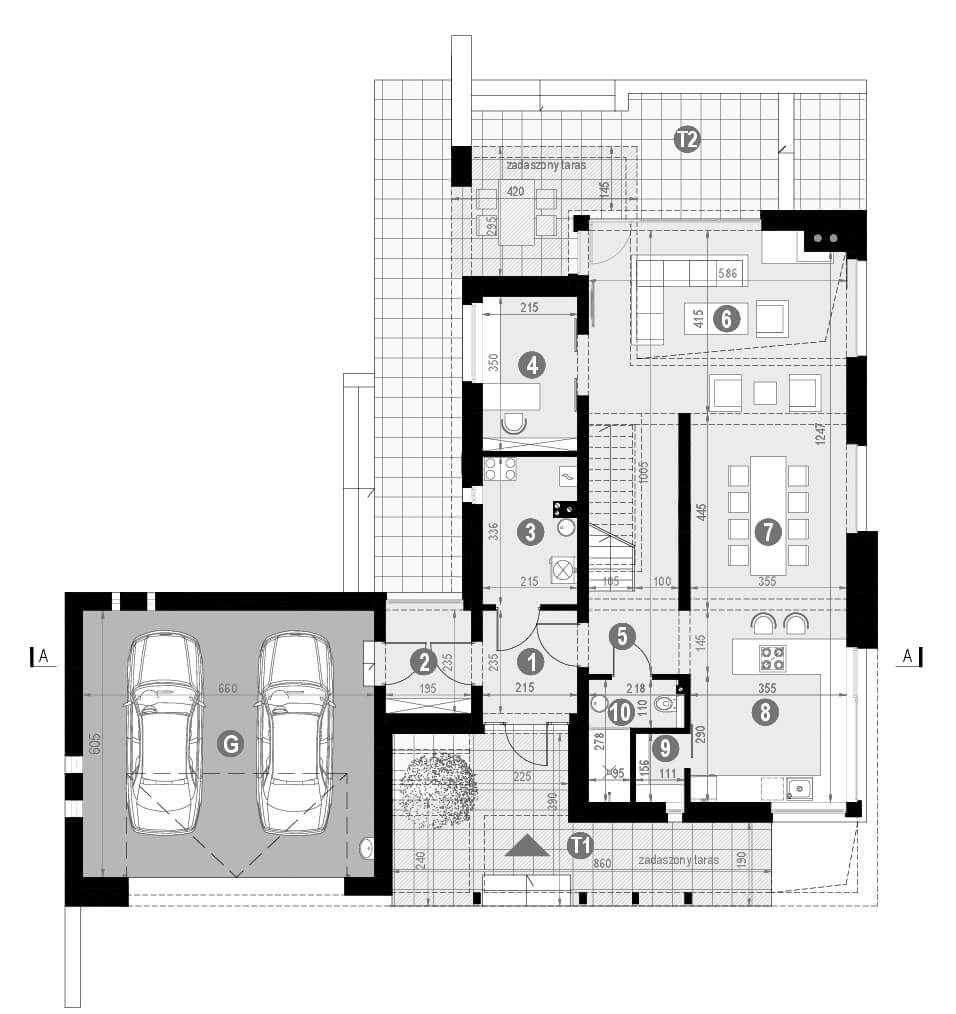
Rzut parteru
1 taras
23.22
2 jadalnia
16.19
3 wiatrołap
5.05
4 kuchnia
12.43
5 łazienka
3.98
6 komunikacja
11.77
7 spiżarnia
1.73
8 kotłownia/pralnia
7.03
9 gabinet
7.53
10 garderoba
4.58
11 salon
26.44
12 garaż
39.93
13 taras
43.59
Rzut poddasza
1 pokój
11.98
2 pokój
15.01
3 balkon
4.2
4 balkon
14.72
5 komunikacja
14.44
6 taras
46.94
7 sypialnia
15.87
8 łazienka
3.1
9 łazienka
6.04
10 garderoba
2.91
przekrój
1 wysokość do okapu dachu
4.42
2 wysokość budynku
8.21

O autorze projektu HOMEKONCEPT 02 G2 EN

6 790 zł

Tylko u nas możesz negocjować cenę!
Skorzystaj z tej możliwości.

Lustrzane odbicie: dostępne.

Masz dodatkowe pytania?
Zadzwoń lub zamów rozmowę.

Zamów rozmowę

Pomożemy Ci dopasować do twoich potrzeb mymarzony projekt, wpisz swój numer telefonu nasz konsultant oddzwoni.

Negocjuj cenę projektu HOMEKONCEPT 02 G2 EN

Wersja projektu:

Zapytaj pytanie o projekt HOMEKONCEPT 02 G2 EN

Wersja projektu:

Oceny i komentarze

Napisz swoją opinię