- Tylko online
- Nowy
Masz pytania? Chciałbyś negocjować cenę
Zadzwoń! 577 575 011
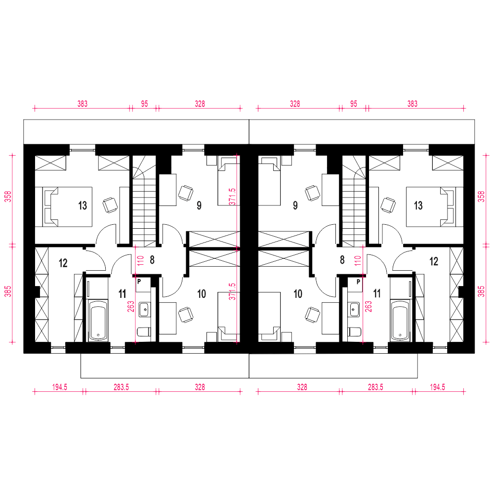
(Uwaga: projekty typu bliźniak oferujemy jako domy dwulokalowe, projekt można zamówić również w zabudowie bliźniaczej) Projekt domu Gaja to nowoczesny piętrowy budynek z dwuspadowym dachem, idealny dla 4-osobowej rodziny. Parter obejmuje przestronny salon z jadalnią i otwartą kuchnią, wzbogacony dużymi drzwiami tarasowymi, które prowadzą na częściowo zadaszony taras. Kuchnia zyskała dodatkowe oświetlenie dzięki dużemu oknu narożnemu. Wejście do domu oraz wjazd do jednostanowiskowego garażu są osłonięte daszkiem. Na piętrze znajdują się trzy sypialnie, obszerna garderoba i funkcjonalna łazienka. Przechodnia kotłownia, dostępna z garażu, umożliwia wygodne wyjście do ogrodu. Konstrukcja dachu zaprojektowana jest z prefabrykowanych wiązach Mitek. Gaja to harmonijny, ponadczasowy dom o wyważonej estetyce, doskonały do miejskiej zabudowy.
