Informujemy, iż nasz sklep internetowy wykorzystuje technologię plików cookies a jednocześnie nie zbiera w sposób automatyczny żadnych informacji, z wyjątkiem informacji zawartych w tych plikach (tzw. „ciasteczkach”).

D157 - WT2021 wersja drewniana

  • Tylko online

Dane techniczne

powierzchnia
64.3 m²
wysokość
7.9 m
kąt dachu
45 °
szerokość działki
17.7 m
Liczba pokoi
2
Powierzchnia zabudowy
46.15
kondygnacje
z poddaszem użytkowym
garaż
wiata
dach
dach dwuspadowy
konstrukcja
szkieletowe
zabudowa
domy wolnostojące
piwnica
bez piwnicy
kubatura
290 m³
dostępne odbicie lustrzane
Nie
Pow. użytkowa
64.3 m²
długość działki
14.5 m
Liczba łazienek
2

Opis projektu

Dom mieszkalny jednorodzinny w technologii tradycyjnej. Idealny dla 4-5-osobowej rodziny. Może również pełnić funkcję domku letniskowego. Prosta bryła budynku oraz nieskomplikowana konstrukcja wpływają na niższe koszty budowy. Miejsce parkingowe w postaci wiaty, zaprojektowano obok budynku. Bardzo funkcjonalny podział pomieszczeń z oddzielną strefą techniczną, strefą dzienną na parterze i nocną na poddaszu.

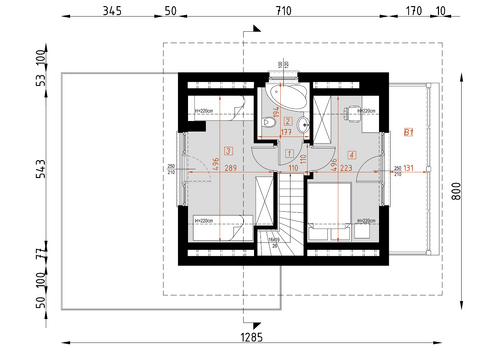
Rzuty

Parter
1 wc
2.45
2 kuchnia
6.59
3 salon+jadalnia
19.24
4 wiata
23.27
5 taras 1
9.48
6 taras 2
4.65
Poddasze
1 komunikacja
4.36
1 łazienka
3.38
1 pokój
11.26
1 pokój
9.98
5 balkon
7.29

Elewacje

Sytuacja

O autorze projektu D157 - WT2021 wersja drewniana

3 599 zł

Tylko u nas możesz negocjować cenę!
Skorzystaj z tej możliwości.

Lustrzane odbicie: niedostępne.

Masz dodatkowe pytania?
Zadzwoń lub zamów rozmowę.

Zamów rozmowę

Pomożemy Ci dopasować do twoich potrzeb mymarzony projekt, wpisz swój numer telefonu nasz konsultant oddzwoni.

Negocjuj cenę projektu D157 - WT2021 wersja drewniana

Zapytaj pytanie o projekt D157 - WT2021 wersja drewniana

Oceny i komentarze

Napisz swoją opinię