- Tylko online
Masz pytania? Chciałbyś negocjować cenę
Zadzwoń! 577 575 011
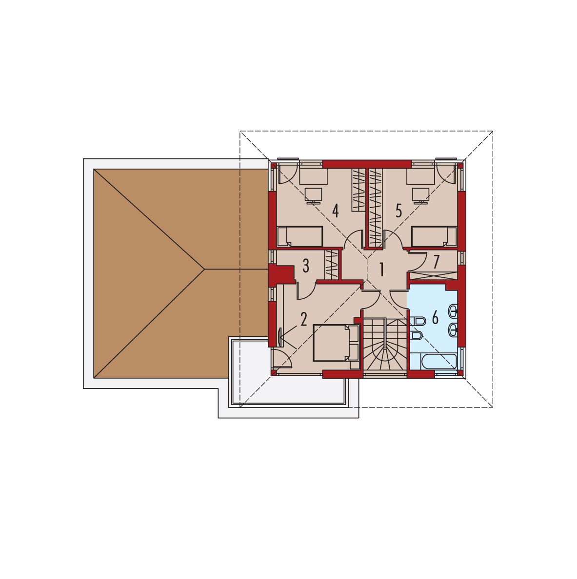
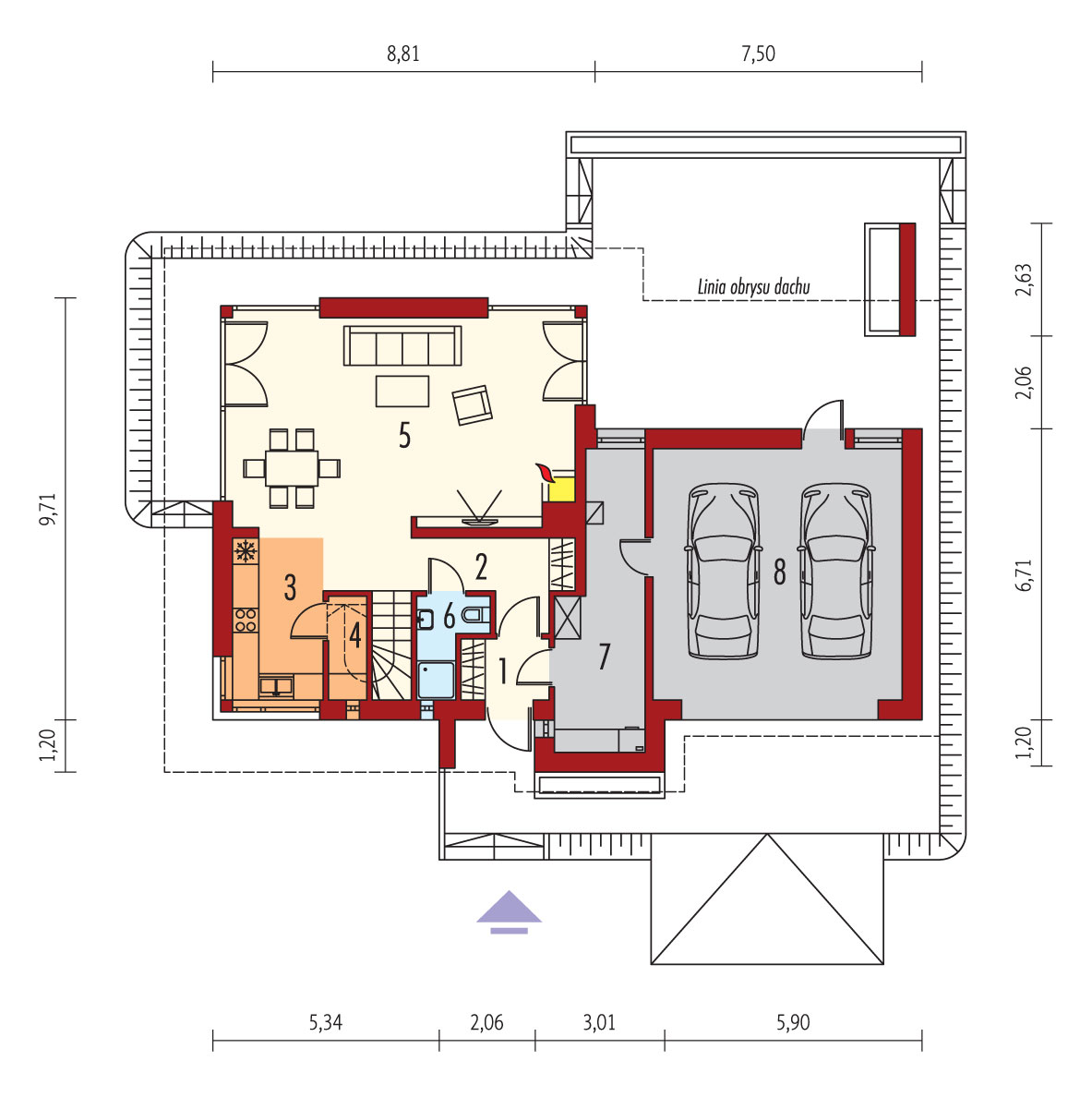
Ściany zewnętrzne trójwarstwowe wykonano z energooszczędnych pustaków ceramicznych. Charakterystyka: dom piętrowy, niepodpiwniczony, z garażem dwustanowiskowymPrzeznaczenie: dom dla 3-4-osobowej rodzinyTechnologia i konstrukcja:Fundamenty: ławy trójwarstwowe, bloczki betonowe 24 cm, ocieplenie styropian 10 cm, bloczki betonowe 12 cmŚciany zewnętrzne: murowane, trójwarstwowe, pustaki ceramiczne 24 cm, ocieplenie wełna mineralna Super-Vent firmy Isover 10 cm, pustka wentylacyjna, warstwa licowa z cegły klinkierowej 11,5 cm firmy RöbenŚciany wewnętrzne: murowane, pustaki ceramiczne 24 cm, ścianki działowe pustaki ceramiczne 11,5 cmPodłoga na gruncie: płyta betonowa, ocieplenie styropian 15 cmStrop: strop międzypiętrowy gęstożebrowy TerivaDach: konstrukcja drewniana, ocieplenie wełna mineralna 30 cm, dachówka ceramiczna MONZAplus Maduro firmy RöbenRozwiązania instalacyjne: Ogrzewanie: kocioł gazowy, rozprowadzenie ciepła: grzejniki Wentylacja: grawitacyjna OZE: kolektory słoneczneWykończenie:Elewacja: cegły licowe klinkierowe firmy Röben 11,5 cm, typ Ravello w kolorze piaskowobiałym i żółtym cieniowanym, elementy nadprożowe i parapety ceglane firmy RöbenStolarka: drewniana, PCV lub aluminiowaWersje w serii Rodrigo - zapytaj o dostępność: - Rodrigo G2 Leca®DOM – dom w technologii Leca® KERAMZYT - Rodrigo II – dom w technologii murowanej z betonu komórkowego i cegły wapienno-piaskowej - Rodrigo III - inne wykończenie elewacji - Rodrigo IV – dom w technologii ścian trójwarstwowych z ceramiki poryzowanej - Rodrigo G2 Multi-Comfort - dom w standardzie Multi-Comfort Grupy Saint-Gobain- wszystkie wersje o podobnym układzie funkcji oraz z inną propozycją wykończenia elewacji - różne warianty garaży dla każdej wersji - odbicie lustrzane do każdej wersjiWszystkie wersje domów możliwe w dwóch standardach/wariantach instalacyjnych: - ENERGO: kocioł gazowy kondensacyjny, grzejniki, wentylacja grawitacyjna, OZE: kolektory słoneczne - ENERGO PLUS: pompa ciepła, ogrzewanie podłogowe, wentylacja mechaniczna, OZE: kolektory słoneczne lub panele fotowoltaiczneIstnieją techniczne możliwości wykonania zmian:- podpiwniczenia budynku- zbliźniaczeniaAtuty projektu okiem architekta:- Doskonałe parametry cieplne dzięki zastosowaniu ścian trójwarstwowych - Delikatnie rozrzeźbiona bryła z modną aparycją- Kuchnia otwarta na jadalnię i salon z wydzieloną praktyczną spiżarnią- Słoneczny i reprezentacyjny salon z kominkiem- Przestronny, częściowo zadaszony taras umilający czas w ciepłe dni- Duże i reprezentacyjne przeszklenia w salonie z trzech stron świata- Wygodna strefa nocna zaplanowana na piętrze- Zadaszenie nad wejściem do budynku jako osłona przed wiatrem i śniegiem- Duża kotłownia pozwala na zastosowanie dowolnego źródła ogrzewania- Garaż oddzielony termicznie od ogrzewanej części budynku
